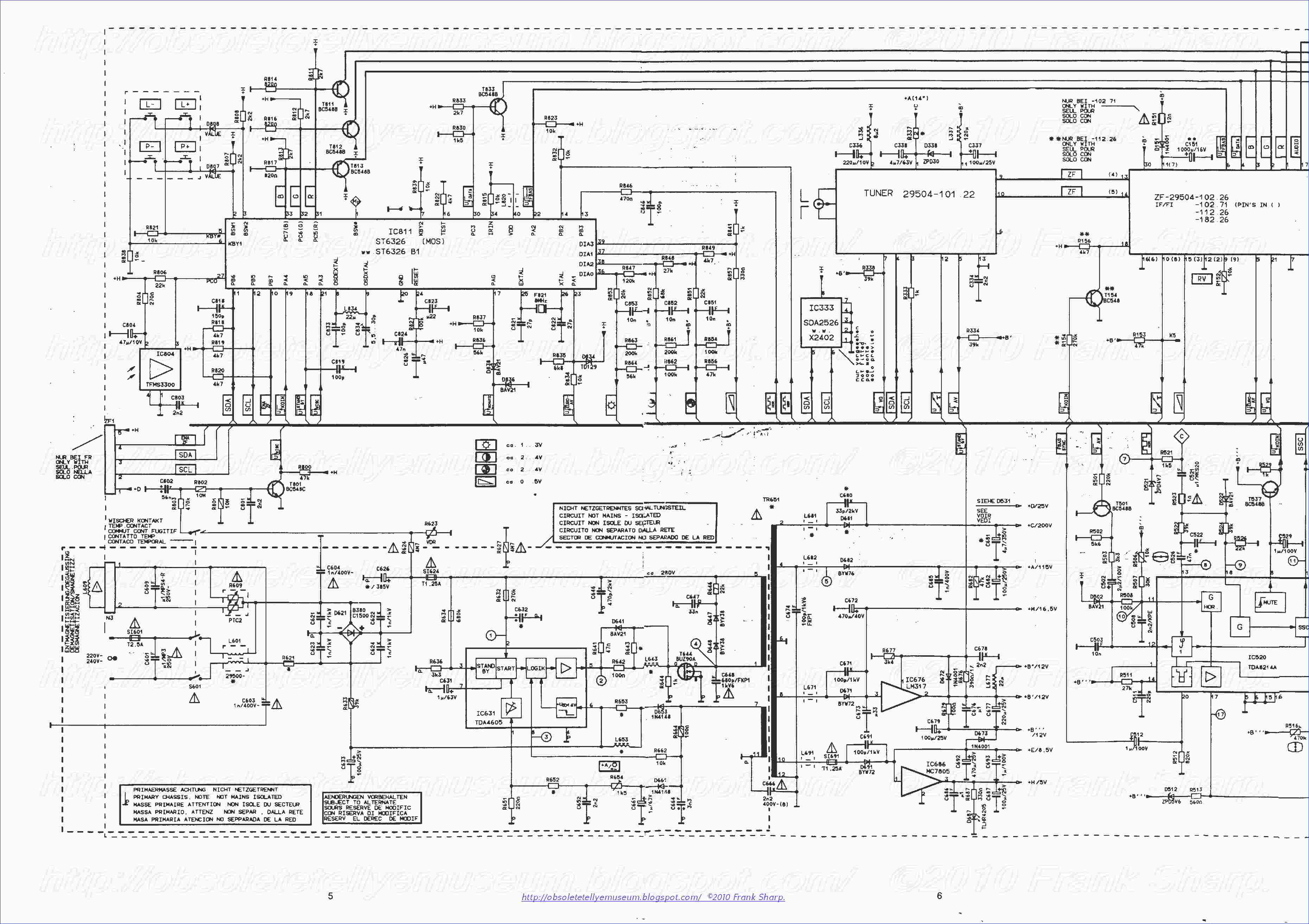
Micom - XC88621P
Memory - SDA2546
SMPS - TDA4605 & BUK455-600
TRASFO Chopper - 29201-327.97
SAW - OFWG1962
PAL/NTSC - TDA3566P
Video -TDA3566P
VIF - TDA5931-6
Vertical -TDA8214B
Teletext - SAA5244P/A
Sound - TDA7245
SIF - U2840B
Tuner - 29504-101.22
FBT - 29201-028.01 (HR6501)
HOT - BU508A
RGB Amp. - BF881
Mains supply
1.1 Primary side in this free running Blocking Oscillator Converter Mains Supply (normal operation approx. 50-60 kHz, Stand-by mode approx 180 kHz), the IC 631 carries out the task of driving the MOS power transistor T 644 as well as all control and monitoring functions. The power supply for IC 631 (Pin 6) is from the resistor R 633 and the capacitor C 633 until the switch—on threshold is reached. After start-up, the supply voltage is provided from diode D 653 from the winding 7/11 of the Blocking Oscillator Transformer. The series circuit consisting of the power transistor T 644 and the primary winding 5/1 of the Blocking Oscillator Transformer connected to the rectified mains voltage (D 621, C 626). During the conducting phase of the transistor, energy is stored in the transformer and this is transferred into the secondary winding when the transistor is switched off. The lC 631 controls by the frequency and the period during which the transistor T 644 is switched on, the transfer of energy at Pin 5 so that the secondary voltages are stable and are not affected by variations in the mains supply and the load. For this to be carried out the information necessary is taken from the transformer winding 11/7 via R 664, D 661, the adjustment control Ft 654 (adjustment of +A at minimum brightness and contrast) and D 651 to Pin 1 of IC 631. The zero crossover detector on Pin 8 (winding 11/7, R 662), which drives the logic block, knows by the voltage passing through zero from positive to negative that the transformer is discharged and enables the logic block to produce the start pulse.
The capacitor C 631 on Pin 7 delays the rise of the Pulse Start duration (soft start). The components D 647, D 648, C 647 and C 648 are used to limit the voltage peaks in the overshoots at the drain of T 644. Over voltage and overload protection If due to a fault condition, over voltages occur at the primary winding, the supply voltage monitor-ing circuit in IC 631 (Pin 6) responds and interrupts the drive to the MOS transistor T 644. If after restart, the over-voltage condition is still present, the complete sampling process is repeated. With a short circuit secondary voltage the IC 631, in conjunction with the collector current simulation on Pin 2, goes into a repeated sampling mode and this also produces power limiting. For this, the RC network R 632 and C 632 generates a voltage which is proportional to the drain current of the switching transistor. If this voltage rises above the output voltage of the control amplifier on Pin 1, the logic in the IC is reset by the stop comparator and as a result, the output Pin 5 is switched to low potential. Mains under voltage In IC 631 a protection circuit operates via Pin 3 when Mains Under- voltages occur. The threshold value is determined by R 634 and Ft 636. When the potential on Pin 3 is from the winding 12/8 via the diode D 671 and via the Fixed Voltage Control IC 676. The winding 12/10 generates the Voltage +E (8.5V) via the diode D 691 for the TT decoder, as well as the low voltage supply +H (5V) for the digital stages in the Receiver. 1.3 Stand-by mode in normal operating mode, a voltage of approx. 10.5 V is present on Pin 1 ct IC 676 (LM 1317). If the receiver is switched to stand—by. the microprocessor IC 81 1 switches Pin 14 to “HIGH” level so that the level on Pin 1 of IC 676 decreases .
Switched-mode power supply control circuit: Siemens Function and Application of the Switch Mode Powersupply IC TDA4605;
a switch responsive to a first control signal having a controllable duty cycle and coupled to said source of input supply voltage for generating an output supply voltage, in accordance with said duty cycle of said first control signal;
a duty cycle modulator responsive to a second control signal for generating said first control signal and for controlling said duty cycle of said first control signal in accordance therewith, said modulator being responsive to a signal that is indicative of said input supply voltage for decreasing said duty cycle when said input supply voltage increases; and
a limiter coupled to said modulator for limiting the decrease in duty cycle, for a given increase in said input supply voltage, when said input supply voltage exceeds a first magnitude.
2. A power supply according to claim 1, wherein said duty cycle of said first control signal varies within a control range, in accordance with said second control signal, and wherein said limiter limits a decrease of said duty cycle when said duty cycle is at an end of said control range.
3. A power supply according to claim 1, wherein said limiter comprises a clamper coupled in a signal path of said input supply voltage indicative signal for clamping said input voltage indicative signal, when said input supply voltage exceeds said first magnitude, and for disabling the clamping thereof, when said input supply voltage does not exceed said first magnitude.
4. A power supply according to claim 3, wherein said voltage clamper comprises a diode.
5. A power supply according to claim 3, further comprising a disabling circuit responsive to said input supply voltage indicative signal for disabling said output supply voltage, when said input supply voltage is smaller than a second magnitude and wherein said voltage clamper is coupled in a common signal path of said input supply voltage indicative signal with respect to each of an input of said disabling circuit and an input of said limiter.
6. A power supply according to claim 1, wherein said modulator comprises a foldback point corrector for decreasing said duty cycle, when said input supply voltage increases and wherein said limiter is coupled to said corrector.
7. A power supply according to claim 1, wherein said second control signal is produced in a feedback path for regulating said output supply voltage.
8. A power supply according to claim 1, wherein said input supply voltage indicative signal is coupled to said modulator from said source of input supply voltage via a signal path that bypasses said switch.
9. A power supply according to claim 8, wherein said limiter comprises a clamp coupled in said signal path for clamping said input supply voltage indicative signal, when said input supply voltage exceeds said first magnitude, and for disabling the clamping operation, when said input supply voltage does not exceed said first magnitude.
10. A power supply, comprising: an input supply voltage, a transformer and a switch coupled for switch mode generation of a regulated output supply voltage,
said switch being responsive to a
first control signal having a controllable duty cycle; a duty cycle modulator for generating said first control signal responsive to a second control signal for limiting a duty cycle of said switch, said modulator operating in a first mode when said second control signal is in a predetermined range of voltage levels and operating in a second mode when said second control signal is outside of said range; and
a voltage monitor circuit for generating said second control signal, said second control signal representing a first proportion of said input supply voltage in a first range of input supply voltage values and a second proportion of said input supply voltage in a second range of input supply voltage values.
11. A power supply according to claim 10 wherein said voltage monitor circuit comprises a clamp coupled in a signal path of said second control signal.
12. A power supply according to claim 11, wherein said second signal is coupled to said modulator from said input supply voltage via a signal path that bypasses said switch.
13. A power supply, comprising: an input supply voltage, a tran
sformer and a switch coupled for switch mode generation
of a regulated output supply voltage, said switch being responsive to a
first control signal having a controllable duty cycle; a duty cycle modulator for generating said first control signal responsive to a second control signal, said modulator operating in a first mode when said second control signal is in a predetermined range of voltage levels and operating in a second mode when said second control signal is outside of said range; and
a voltage monitor circuit for generating said second control signal, said second control signal representing a first proportion of said input supply voltage in a first range of input supply voltage values and a second proportion of said input supply voltage in a second range of input supply voltage values, such that as long as said input supply voltage is in said first range of input supply voltage values, said second control signal varies when said input supply voltage varies and said modulator operates in said first mode of operation.
14. A power supply, comprising: an input supply voltage, a transformer and a switch coupled for switch mode generation of a regulated output supply voltage, said switch being responsive to a first control signal having a controllable duty cycle;
a duty cycle modulator for generating said first control signal responsive to a second control signal, said modulator operating in a first mode when said second control signal is in a predetermined range of voltage levels and operating in a second mode when said second control signal is outside of said range; and
a nonlinear voltage divider circuit coupled to said input supply voltage for generating said second control signal, said second control signal representing a first proportion of said input supply voltage in a first range of input supply voltage values and a second proportion of said input supply voltage in a second range of input supply voltage values.
Switched-mode power supplies
efficiently generate a variety of regulated voltages
from a single line voltage level (e.g., 220 volts AC). One important use
of these power supplies is within a television signal receiver where
they are used to produce a regulated B+ voltage for the horizontal
deflection circuit as well as other regulated voltages for powering
various digital and analog circuits. Typically, a switched-mode power supply contains a full-wave rectifier, a power supply controller, a switch, and an output transformer. The switch is typically a high-power transistor such as a MOSFET. To regulate the output voltages, the controller activates and deactivates (e.g., pulse width modulates) the gate of the transistor in response to power supply loading and other control parameters. The switched voltage from the transistor drives a primary winding of the transformer, while various power supply loads are connected to one or more secondary windings. As such, the power supply converts an AC input voltage into one or more DC voltages.
One particular controller is an integrated circuit available from Siemens as Model TDA 4605. This power supply controller is typically used to drive the MOSFET transistor, which in turn drives the primary coil of the transformer. This specific integrated circuit, as well as others used in the art, typically contain a control mechanism that disables the power supply when the input voltage drops below a pre-defined voltage level. Such protection is necessary because, to produce regulated output voltages, the switched-mode power supply increases the duty cycle of the control signal driving the transistor as the input voltage decreases. At some point, the input voltage decreases to a level where the output of the power supply is unregulated (e.g., the maximum pulse length is used to drive the transistor). Such unregulated operation can damage the power supply electronics, but is more likely to damage the load electronics.
For the integrated circuit (IC) TDA4605, as defined in the TDA4605 Technical Manual available from Siemens AG, dated Jul. 27, 1989, pin 3 of the integrated circuit is used for sensing or monitoring the primary input voltage (vp) for the power supply (e.g., the rectified AC voltage). The threshold voltage for disabling or deactivating the integrated circuit, and thus the power supply, is pre-established by the controller at one volt. As such, the primary input voltage (vp) is reduced using a voltage divider at the input of pin 3. By selecting appropriate resistor
values within the voltage
divider, a nominal value of monitoring voltage is applied to pin 3.
Typically, this voltage is approximately 2.0 volts for a primary input
voltage of 120 volts. When the primary input voltage falls to a level
that causes the monitoring voltage at pin 3 to fall below one volt, the
power supply is deactivated to avoid unregulated operation. As stated above, this form of switched-mode power supply has been finding use within television signal receivers. However, television receivers, in particular, present peculiar loading characteristics to a power supply. Specifically, a television receiver power supply is called upon to produce a regulated B+ voltage, typically of approximately 140 volts, as well as a low voltage DC level of 16 volts for powering all of the digital and analog circuitry within the receiver. When the television receiver is switched from stand-by to run mode, a heavy load is produced by the in-rush of current into filter capacitors connected to the regulated B+ voltage. This heavy load causes the power supply to temporarily operate in an unregulated (maximum pulse width) mode, and may cause the primary input voltage to drop to a low level. Furthermore, when the degaussing circuit is activated to degauss the cathode ray tube (CRT), the main AC supply voltage is depressed due to the substantial load presented by the degaussing circuit. Consequently, the drop in line voltage could typically cause the monitoring voltage to drop below the 1 volt, first threshold level, and as such, to disable the power supply.
Therefore, there it is desirable to produce a monitoring voltage indicative of the primary input voltage, but to insure that the power supply will not be deactivated for the expected heavy loads found in a television receiver.
The IC TDA 4605 includes a foldback point correction circuit that reduces the maximum duty cycle of the MOSFET control signal, when the monitoring voltage exceeds a second threshold level of approximately 1.7 V. The monitoring voltage is applied to the correction circuit also via pin 3.
In a circuit embodying an inventive feature, a resistive voltage divider that produces the monitoring input or sense signal from the primary input voltage is designed such that the first threshold level is not attained during the expected temporary loading of the primary input voltage. However, such a voltage divider results in a higher voltage being applied to the monitoring voltage input of the controller during normal operation of the power supply. As such, an increase of the primary input voltage to a higher level, which is still within the acceptable tolerance range of the AC line voltage, can cause the monitoring voltage to rise to a level that exceeds the second
threshold
level at which the integrated circuit begins to limit the maximum duty
cycle of the control signal that controls the MOSFET, i.e., the
controller applies a foldback correction technique. When the second
threshold level is exceeded, the power supply automatically limits the
output power of the power supply for an increase in the primary voltage.
As a result of the voltage divider design that provides sufficient
headroom to overcome loading generated drop outs in the primary input
voltage, the maximum power supply output could be, undesirably,
significantly reduced at high primary input voltage. In carrying out an inventive feature, to insure that such inconsequential increase in the primary input voltage does not cause the power supply to significantly reduce the maximum duty cycle of the control signal and thereby, the power output of the power supply, a zener diode is coupled to the voltage divider. The zener diode limits the magnitude of the monitoring voltage to a level that avoids further maximum duty cycle limiting when the primary input voltage further increases. Consequently, when the power supply is used in a television signal receiver, the voltage divider provides enough head room for the primary voltage to drop substantially due to degaussing circuit activation or other loading conditions, while the zener diode insures that the primary voltage can rise above its nominal voltage without causing a significant power limitation of the power supply output.
A switch mode power supply, embodying an aspect of the invention, includes a source of an input supply voltage. A switch is responsive to a first control signal having a controllable duty cycle and coupled to the source of input supply voltage for generating an output supply voltage, in accordance with the duty cycle of the first control signal. A duty cycle modulator is responsive to a second control signal for generating the first control signal and for controlling the duty cycle of the first control signal in accordance therewith in a manner to control the current pulses. An increase in the duty cycle produces an increase in a magnitude of the current pulses. The modulator is responsive to a signal that is indicative of the input supply voltage for decreasing the duty cycle when the input supply voltage increases. A limiter is coupled to the modulator for limiting the decrease in duty cycle, for a given increase in said input supply voltage, when the input supply voltage exceeds a first magnitude.
FIG. 1 depicts a schematic diagram of a switched-mode power supply incorporating the teachings of the present invention.
FIG.
1 depicts a schematic diagram of a switched-mode power supply 100
incorporating the present invention. The embodiment shown is designed
for use as a power supply for a television signal receiver, wherein the
power supply generates a regulated B+ voltage (e.g., 140 volts) and a
low voltage (e.g., 16 volts). The regulated B+ voltage is used to power a
horizontal deflection circuit and the regulated low voltage is used to
power the digital and analog electronics (continuous load 118). Other
applications for the power supply may require slight variation in the
depicted components and their interconnections; however, such variations
are well within the scope of the present invention. The power supply contains a number of major components, including a full-wave rectifier 102, the power supply controller 106, a MOSFET transistor Q1, a monitor voltage generator 110, an output transformer 112, and a plurality of circuit components used to complete the power supply electronics. Illustratively, the input to the power supply is a 110-volt AC, 60 hertz voltage.
Rectifier 102 is a conventional full-wave bridge rectifier coupled to an AC input voltage source 101. The output of the bridge rectifier 102 is coupled to capacitor C1 approximately 680 μF). A voltage RAW B+ forms raw (unregulated) B+ voltage (also referred to herein as the primary input voltage vp) having a nominal value of approximately 150 volts. Capacitor C1, connected from the output of the rectifier to ground, smoothes the voltage from the bridge rectifier such that a DC voltage, i.e., the primary input voltage vp, is available at the upper terminal of the transformer's primary winding W1.
The primary input voltage forms an input to the monitor voltage generator 110 which produces a monitor voltage VZ1 for
the controller 106. The
monitor voltage generator is discussed in detail below. The controller is illustratively a TDA4605 power supply controller available from Siemens AG of Munich, Germany. The eight pins of the controller are connected to signals and voltages that enable the controller to produce a pulse width or duty cycle modulated signal at pin five for controlling the duty cycle of the transistor Q1. Specifically, pin 4 of controller 106 is grounded. Pin 3 is coupled to the monitor voltage.
Pin 2 is supplied information concerning the primary current. A primary current increase in the primary winding W1 is simulated as a voltage rise of a periodical, ramp voltage VC2 at pin 2 using an external RC element formed by resistor R3, capacitor C2, and resistor R4 (where R3 is approximately 360 kΩ, C2 is approximately 6,800 pF; and R4 is approximately 220 Ω). These elements are connected in series from the primary input voltage to ground. Pin 2 of the controller 106 is coupled to the junction of R3 and C2. A pulse width modulator 106c of the controller 106 controls the duration of the forward phase, and thus, the primary peak current, using ramp voltage VC2 that is proportional to the drain current of the transistor Q1. As indicated before, the ramp voltage is derived from the primary input voltage using the RC elements connected to pin 2, i.e., the ramp voltage simulates the primary current. Controller pin 1 is supplied secondary voltage information which internally compares the control voltage sampled from the regulating winding W3 of the transformer 112 and compares that sample voltage with an internal reference voltage.
Pin 5 generates a duty cycle modulated control signal or voltage VOUT via a push-pull output driver for rapid charge and discharge of the input capacitance of a MOSFET power transistor Q1 (Model IRF740).
Pin 6 is coupled to the supply voltage for the controller. Pin 7 forms a soft start input terminal. Capacitor C5 (0.1 μF) is connected from pin 7 to ground to reduce the pulse duration during start-up. Lastly, pin 8 is the input pin for the oscillator feedback.

In operation, the transistor Q1 is used as a power switch controlled by the controller 106. A snubber circuit is connected to the drain of the transistor Q1. The snubber circuit contains a combination of diode D3, resistor R16 and capacitor C12, which together limit the voltage overshoot when the transistor is turned off. D3 is a MUR450 diode, C12 is a 1000 pF capacitor, and R16 is a 2-watt, 30 kΩ resistor.
Together with the stray capacitance of the transformer, capacitor C7 (470 pF connected from drain terminal to ground) determines the no-load frequency, and consequently, the maximum slew rate of the drain voltage for a transistor Q1.
Transistor Q1 is driven with pulse width modulated signal VOUT produced at pin 5 of controller 106 and coupled to the gate terminal of the transistor via resistor R11 (35 Ω). Furthermore, a capacitor C6 (4700 pF) is coupled from the source terminal to the drain terminal. The source terminal is coupled to ground through resistor R13 (0.27 KΩ). Resistor R12 (10 kΩ) is optionally connected between the source terminal and gate terminal to ensure that the transistor will not be activated if power is applied to the power supply without the controller 106 being installed. The drain terminal is coupled to one terminal of the primary winding W1 of transformer 112. Consequently, the transistor Q1 controls the current flow from the primary input voltage thr
ough the primary winding. The secondary circuit of the transformer 112 consists of several windings, each of which has a different number of turns, polarity, and load capacity. Specifically, winding W2 forms the output voltage for the regulated B+, while winding W4 forms the output winding for the regulated 16-volt low voltage output, and winding W3 generates the feedback voltage for the controller 106.
The load circuitry includes, connected to winding W2, an output diode D4 and capacitor C13 that couple power to the horizontal deflection circuit 116. Additionally, the center tap of the output secondary winding is connected to ground, and winding W4 is coupled to diode D5 and capacitor C14. This output is the 16 volts that powers the continuous load 118 of the television receiver, e.g., all of the electronics and integrated circuits. This circuit 118 also controls the timing of when the degaussing circuit 114 is activated using degaussing control line 120. The control line for the continuous load is the run/standby control signal that essentially turns the television receiver on and off. The continuous load circuitry 118 is also coupled to the horizontal deflection circuit 116 to provide control signals therefor.
The controller 106 is started up using resistor R17 (100 KΩ) as a start resistor. As such, capacitor C11 (100 μF) is charged with half-wave currents at the voltage supply pin of the controller 106, e.g., pin 6. These half-wave currents are supplied from the primary input voltage through resistor R17 (100 KΩ) to ground through series connected resistor R14 (202 Ω), diode D
2 (148 Ω) and regulating winding
W3. When the voltage at C11 reaches the switch-on threshold, the
switched-mode power supply begins to function and supplies the feedback
voltage, via winding W3, resistor R14 and diode D2. This feedback
voltage, when rectified by diode D2 and smoothed by capacitor C11, forms
the supply voltage (vcc) for the controller 106 via pin 6. A control signal or voltage VCT for pin 1 is generated in a circuit parallel to the controller supply voltage circuit. The control voltage is produced by diode D1 (ERB43) charging capacitor C3 (1.5 μF) through resistor R8 (10 Ω). The RC element, consisting of series connected R15 (30 Ω) and C10 (0.01 μF), prevents peak value rectification of high frequency components of the feedback signal.
More specifically, regulating winding W3 is coupled to one terminal of resistor R15. The other terminal of resistor R15 is coupled to capacitor C10 to ground. Diode D1 is connected at the junction of resistor R15 and capacitor C10. Capacitor C9 (1000 pF) is connected in parallel with diode D1. Diode D1 has an output voltage that is coupled to series connected R8 and C3 which couples the output of the diode to ground. The output of the diode is also coupled through resistive divider network R6 and R7 which are respectively connected in series to ground. The voltage at the junction of R6 and R7 forms control voltage VCT and is coupled to pin 1 of the controller 106. These resistors define the no-load frequency of oscillation of the controller 106. Therefore, they are typically 0.1% accurate resistors having R6 being 5.49 KΩ, and R7 being 174 Ω. Control voltage VCT is coupled to a pulse-width modulator 106c within controller 106 that co
ntrols the duty cycle modulation of voltage VOUT for
regulating, for example, voltage REGB+. During the power supply start-up, capacitor C5 at the soft-start pin (e.g., pin 7), influences the duration of the forward phase by controlling the error voltage of the pulse width modulator. The controller detects the end of the transformer discharge phase via resistor R10 (20 KΩ) that is coupled at one end to controller pin 8 and at the other end to resistor R14, and ultimately to the regulating winding W3. Additionally, capacitor C8 (0.022 μF) is coupled from the junction of R10 and R14 to ground. At this point, the voltage changes polarity from positive to negative, i.e., the voltage represents zero crossings.
A voltage VZ1, embodying an inventive feature, is generated by the monitor voltage generator 110 and is coupled to pin 3 of the controller 106. Voltage VZ1 is used both for determining the minimum line voltage that will allow the power supply to operate and for controlling a foldback point correction circuit 106b within the controller 106.
The monitor voltage generator 110 contains resistor R1 (270 kΩ) coupled in series with resistor R2 (5100 Ω) to form a resistive voltage divider network with respect to primary input voltage RAW B+. The junction of the two resistors is coupled to the pin 3 of controller 106. Furthermore, a zener diode Z1 (B2X55/C3VO), embodying an inventive feature, is connected in parallel with resistor R2 from the junction point to ground. Zener diode Z1 forms a limiter for limiting the maximum voltage across R2 to the breakdown voltage of the zener diode Z1. Consequently, the voltage at the output of the monitor voltage generator 110 tracks the primary input voltage RAW B+ up to the threshold point where the zener diode Z1 begins to conduct.
The controller 106 includes an under-voltage detector 106a that uses a fixed, internal voltage threshold that causes the controller to disable the power supply whenever the monitor voltage VZ1 drops below a first threshold voltage. For the TDA 4605 integrated circuit, this first threshold voltage is one volt. As such, the divider network of R1 and R2 defines a voltage at the output that under typical operation would not cause the controller to deactivate the power supply.
In one particular application, e.g., a television signal receiver, a degaussing circuit 114 for a television signal receiver is typically connected directly across the input AC power. Consequently, when the degaussing circuit is activated, it will typically cause a drop in the AC voltage that is applied to the input of the voltage rectifier 102. Consequently,
the primary input
voltage RAW B+ will drop significantly during the degaussing period.
Since this is a normal behavior of a conventional television receiver
circuit, it is desirable that the monitor voltage generator 110 be
designed such that the controller 106 will not deactivate the power
supply during the degaussing period. For a primary input voltage of 120 volts and using a resistive divider of 270 KΩ for R1 and 5100 Ω for R2, the nominal voltage VZ1 at the voltage monitor input pin is 2 volts. Such a value for the voltage monitor voltage will avoid power supply deactivation during the degaussing period or other heavy load period.
When the duty cycle of voltage VOUT is at the maximum as a result of an overload condition, an increase in voltage RAW B+, produced by an increase in the AC line voltage, causes the voltage across primary winding w1 to increase. As the primary input voltage RAW B+ rises, the available input power to the power supply increases which could damage the power supply when the power supply is overloaded. During a period of overloaded, unregulated output, the modulator 106c generates the voltage VOUT having a maximum duty cycle for driving transistor Q1. As a result, a primary current IP in winding W1 of transformer 112 has also a maximum duty cycle. Therefore, undesirably an increase in voltage RAW B+ can produce a large voltage across the transistor that could damage the transistor or other circuitry.
To maintain the power supply within a safe operation range, the controller 106 includes what is known as a foldback or overload point correction circuit 106b. This foldback point correction circuit reduces the maximum duty cycle of voltage VOUT when the primary input voltage exceeds a predetermined magnitude. An increase above the predetermined magnitude causes the foldback point correction circuit 106b to decrease the maximum duty cycle of signal VOUT as voltage RAW B+ increases. The decrease is done by generating a correction curren
t ICOR
that is coupled to capacitor C2 causing an increase in the rate of
change of voltage VC2 at pin 2 of controller 106 when voltage VZ1
exceeds a second threshold voltage. When voltage RAW B+ increases and causes voltage VZ1 to further increase above the second threshold voltage an increase in current ICOR produces a decrease in the maximum duty cycle of signal VOUT, in a well know manner. The second threshold voltage occurs when voltage VZ1 is above a voltage level of approximately 1.7 V. The result is that, when voltage RAW B+ further increases the maximum duty cycle decreases proportionally. The decrease in the maximum duty cycle tends to stabilize the maximum power produced in the power supply against an increase of voltage RAW B+. On the other hand, an increase of voltage VZ1 when voltage VZ1 is below the 1.7 V level, does not affect current ICOR and the duty cycle of voltage VOUT.
Because the divider network (R1 and R2) establishes a sufficiently large monitor voltage VZ1 that provides sufficient headroom for preventing power supply shutdown when the degaussing circuit is activated, primary input voltage RAW B+ may be at a level that causes voltage VZ1 to exceed the second threshold voltage of circuit 106b by an excessive amount even when volt
age RAW B+ is within the normal tolerance range.
Therefore, disadvantageously, the maximum duty cycle may further
decrease by a significant amount in a manner to lower the maximum power
that can be derived. Such significant reduction in power capability can
occur even though primary input voltage is not truly at such a high
level that could damage the power supply. In accordance with an inventive feature, to prevent current ICOR from further reducing the maximum duty cycle of voltage VOUT when voltage RAW B+ increases above a threshold magnitude that corresponds to voltage VZ1 being equal to 3 V, the monitor voltage generator 110 contains the zener diode Z1 operating as a limiter which limits the primary input voltage indicative voltage VZ1 to 3 V. Consequently, the monitor voltage VZ1 can never rise above a pre-defined level (e.g., 3 volts) that would otherwise cause the foldback point correction circuit 106b within the controller 106 to further decrease the maximum duty cycle. In this way, advantageously, the decrease in the maximum duty cycle as a function of an increase in voltage RAW B+ is limited.
The decrease in the duty cycle of voltage VOUT produced by current ICOR, for a given increase in voltage RAW B+, is limited when voltage RAW B+ is greater than a threshold magnitude that corresponds to voltage VZ1 equal to 3 V. In contrast, the decrease in the duty cycle produced by current ICOR is not limited but varies proportionally to voltage RAW B+ when voltage VZ1 is between 1.7 V and 3 V. Thus, zener diode Z1 operates as a limiter for limiting the decrease in the duty cycle when the voltage RAW B+ exceeds the threshold magnitude relative to when voltage RAW B+ does not exceed the threshold magnitude. An increase in voltage RAW B+ that produces voltage VZ1 below the second threshold voltage of 1.7 V, does not affect current ICOR.
Specifically, for the TDA 4605 integrated circuit control, the zener diode has a value of three volts. Consequently, the input signal to the monitor voltage generator cannot rise above the three volt level before the zener diode will begin to conduct current to ground. As such, the monitor voltage generator establishes a range of voltages that pre-defines a range of primary input voltages at which the controller 106 operates in a normal manner that avoids both an undervoltage power supply deactivation and a further decrease in the maximum duty cycle. The input voltage dynamic range is thereby extended.
SIEMENS TDA4605-3 Control IC for Switched-Mode Power Supplies usingMOS-Transistor
The IC TDA4605-3 controls the MOS-power transistor and performs all necessary control andprotection functions in free running flyback converters. Because of the fact that a wide load range
is achieved, this IC is applicable for consumer as well as industrial power supplies.
The serial circuit and primary winding of the flyback transformer are connected in series to the input
voltage. During the switch-on period of the transistor, energy is stored in the transformer. During the
switch-off period the energy is fed to the load via the secondary winding. By varying switch-on time
of the power transistor, the IC controls each portion of energy transferred to the secondary side
such that the output voltage remains nearly independent of load variations. The required control
information is taken from the input voltage during the switch-on period and from a regulation winding
during the switch-off period. A new cycle will start if the transformer has transferred the stored
energy completely into the load.
In the different load ranges the switched-mode power supply (SMPS) behaves as follows:
No load operation
The power supply is operating in the burst mode at typical 20 to 40 kHz. The output voltage can be
a little bit higher or lower than the nominal value depending of the design of the transformer and the
resistors of the control voltage divider.
Nominal operation
The switching frequency is reduced with increasing load and decreasing AC-voltage.
The output voltage is only dependent on the load.
Overload point
Maximal output power is available at this point of the output characteristic.
Overload
The energy transferred per operation cycle is limited at the top. Therefore the output voltages
declines by secondary overloading.
Circuit DescriptionApplication Circuit
The application circuit shows a flyback converter for video recorders with an output power rating of
70 W. The circuit is designed as a wide-range power supply for AC-line voltages of 180 to 264 V.
The AC-input voltage is rectified by the bridge rectifier GR1 and smoothed by C1 . The NTC limits
the rush-in current.
In the period before the switch-on threshold is reached the IC is suppled via resistor R 1 ; during the
start-up phase it uses the energy stored in C2 , under steady state conditions the IC receives its
supply voltage from transformer winding n1 via diode D1. The switching transistor T1 is a BUZ 90.
The parallel connected capacitor C3 and the inductance of primary winding n 2 determine the
system resonance frequency. The R 2-C4-D2 circuitry limits overshoot peaks, and R 3 protects the
gate of T1 against static charges.
During the conductive phase of the power transistor T1 the current rise in the primary winding
depends on the winding inductance and the mains voltage. The network consisting of R 4-C5 is used
to create a model of the sawtooth shaped rise of the collector current. The resulting control voltage
is fed into pin 2 of the IC. The RC-time constant given by R 4-C5 must be designed that way that
driving the transistor core into saturation is avoided.
The ratio of the voltage divider R 10/R 11 is fixing a voltage level threshold. Below this threshold the
switching power supply shall stop operation because of the low mains voltage. The control voltage
present at pin 3 also determines the correction current for the fold-back point. This current added to
the current flowing through R 4 and represents an additional charge to C5 in order to reduce the turnon
phase of T1. This is done to stabilize the fold-back point even under higher mains voltages.
Regulation of the switched-mode power supplies via pin 1. The control voltage of winding n1 during
the off period of T1 is rectified by D3, smoothed by C6 and stepped down at an adjustable ratio byR 5 , R 6 and R 7 . The R 8-C7 network suppresses parasitic overshoots (transformer oscillation). The
peak voltage at pin 2, and thus the primary peak current, is adjusted by the IC so that the voltage
applied across the control winding, and hence the output voltages, are at the desired level.
When the transformer has supplied its energy to the load, the control voltage passes through zero.
The IC detects the zero crossing via series resistors R 9 connected to pin 8. But zero crossings are
also produced by transformer oscillation after T1 has turned off if output is short-circuited. Therefore
the IC ignores zero crossings occurring within a specified period of time after T1 turn-off.
The capacitor C8 connected to pin 7 causes the power supply to be started with shorter pulses to
keep the operating frequency outside the audible range during start-up.
On the secondary side, five output voltages are produced across winding n3 to n7 rectified by D4 to
D8 and smoothed by C9 to C13 . Resistors R 12 , R 14 and R 19 to R 21 are used as bleeder resistors.
Fusable resistors R 15 to R 18 protect the rectifiers against short circuits in the output circuits, which
are designed to supply only small loads.
Pin 1
The regulating voltage forwarded to this pin is compared with a stable internal reference voltage VR
in the regulating and overload amplifier. The output of this stage is fed to the stop comparator. Ifthe control voltage is rather small at pin 1 an additional current is added by means of current source
which is controlled according the level at pin 7. This additional current is virtually reducing the
control voltage present at pin 1.
Pin 2
A voltage proportional to the drain current of the switching transistor is generated there by the
external RC-combination in conjunction with the primary current transducer. The output of this
transducer is controlled by the logic and referenced to the internal stable voltage V2B . If the voltage
V2 exceeds the output voltage of the regulations amplifier, the logic is reset by the stop comparator
and consequently the output of pin 5 is switched to low potential. Further inputs for the logic stage
are the output for the start impulse generator with the stable reference potential VST and the
supply voltage motor.
Pin 3
The down divided primary voltage applied there stabilizes the overload point. In addition the logic is
disabled in the event of low voltage by comparison with the internal stable voltage VV in the primary
voltage monitor block.
Pin 4
Ground
Pin 5
In the output stage the output signals produced by the logic
are shifted to a level suitable for MOSpowertransistors.
Pin 6
From the supply voltage V6 are derived a stable internal references VREF and the switching
threshold V6A , V6E , V6 max and V6 min for the supply voltage monitor. All references values (VR ,
V2B , VST) are derived from VREF . If V6 > VVE , the VREF is switched on and switched off when V6 <
V 6A . In addition, the logic is released only for V6 min < V6 < V6 max .
Pin 7
The output of the overload amplifier is connected to pin 7. A load on this output causes a reduction
in maximal impulse duration. This function can be used to implement a soft start, when pin 7 is
connected to ground by a capacitor.
Pin 8
The zero detector controlling the logic block recognizes the transformer being discharged by
positive to negative zero crossing of pin 8 voltage and enables the logic for a new pulse. Parasitic
oscillations occurring at the end of a pulse cannot lead to a new pulse (double pulsing), because an
internal circuit inhibits the zero detector for a finite time tUL after the end of each pulse.
Start-Up Behaviour
The start-up behaviour of the application circuit per sheet 88 is represented an sheet 90 for a linevoltage barely above the lower acceptable limit time t0 the following voltages built up:
– V6 corresponding to the half-wave charge current over R1
– V2 to V2 max (typically 6.6 V)
– V3 to the value determined by the divider R 10/R 11 .
The current drawn by the IC in this case is less than 1.6 mA.
If V6 reaches the threshold V6E (time point t1), the IC switches on the internal reference voltage. The
current draw max. rises to 12 mA. The primary current- voltage reproducer regulates V2 down to V2B
and the starting impulse generator generates the starting impulses from time point t5 to t6 . The
feedback to pin 8 starts the next impulse and so on. All impulses including the starting impulse are
controlled in width by regulating voltage of pin 1. When switching on this corresponds to a shortcircuit
event, i.e. V1 = 0. Hence the IC starts up with "short-circuit impulses" to assume a width
depending on the regulating voltage feedback (the IC operates in the overload range). The IC
operates at the overload point. Thereafter the peak values of V2 decrease rapidly, as the starting
attempt is aborted (pin 5 is switched to low). As the IC remains switched on, V6 further decreases
to V6 . The IC switches off; V6 can rise again (time point t4) and a new start-up attempt begins at
time point t1 . If the rectified alternating Iine voltage (primary voltage) collapses during load, V3 can
fall below V3A , as is happening at time point t3 (switch-on attempt when voltage is too low). The
primary voltage monitor then clamps V3 to V3S until the IC switches off (V6 < V6A). Then a new startup
attempt begins at time point t1 .
Regulation, Overload and No-Load Behaviour
When the IC has started up, it is operating in the regulation range. The potential at pin 1 typically is
400 mV. If the output is loaded, the regulation amplifier allows broader impulses (V5 = H). The peak
voltage value at pin 2 increases up to V2S max . If the secondary load is further increased, the
overload amplifier begins to regulate the pulse width downward. This point is referred to as the
overload point of the power supply. As the IC-supply voltage V6 is directly proportional to the
secondary voltage, it goes down in accordance with the overload regulation behaviour. If V6 falls
below the value V6 min , the IC goes into burst operation. As the time constant of the half-wave
charge-up is relatively large, the short-circuit power remains small. The overload amplifier cuts back
to the pulse width tpk . This pulse width must remain possible, in order to permit the IC to start-up
without problems from the virtual short-circuit, which every switching on with V1 = 0 represents. If
the secondary side is unloaded, the loading impulses (V5 = H) become shorter. The frequency
increases up to the resonance frequency of the system. If the load is further reduced, the secondary
voltages and V6 increase. When V6 = V6 max the logic is blocked. The IC converts to burst
operation.This renders the circuit absolutely safe under no-load conditions.
Behaviour when Temperature Exceeds Limit
An integrated temperature protection disables the logic when the chip temperature becomes too
high. The IC automatically interrogates the temperature and starts as soon as the temperature
decreases to permissible values.
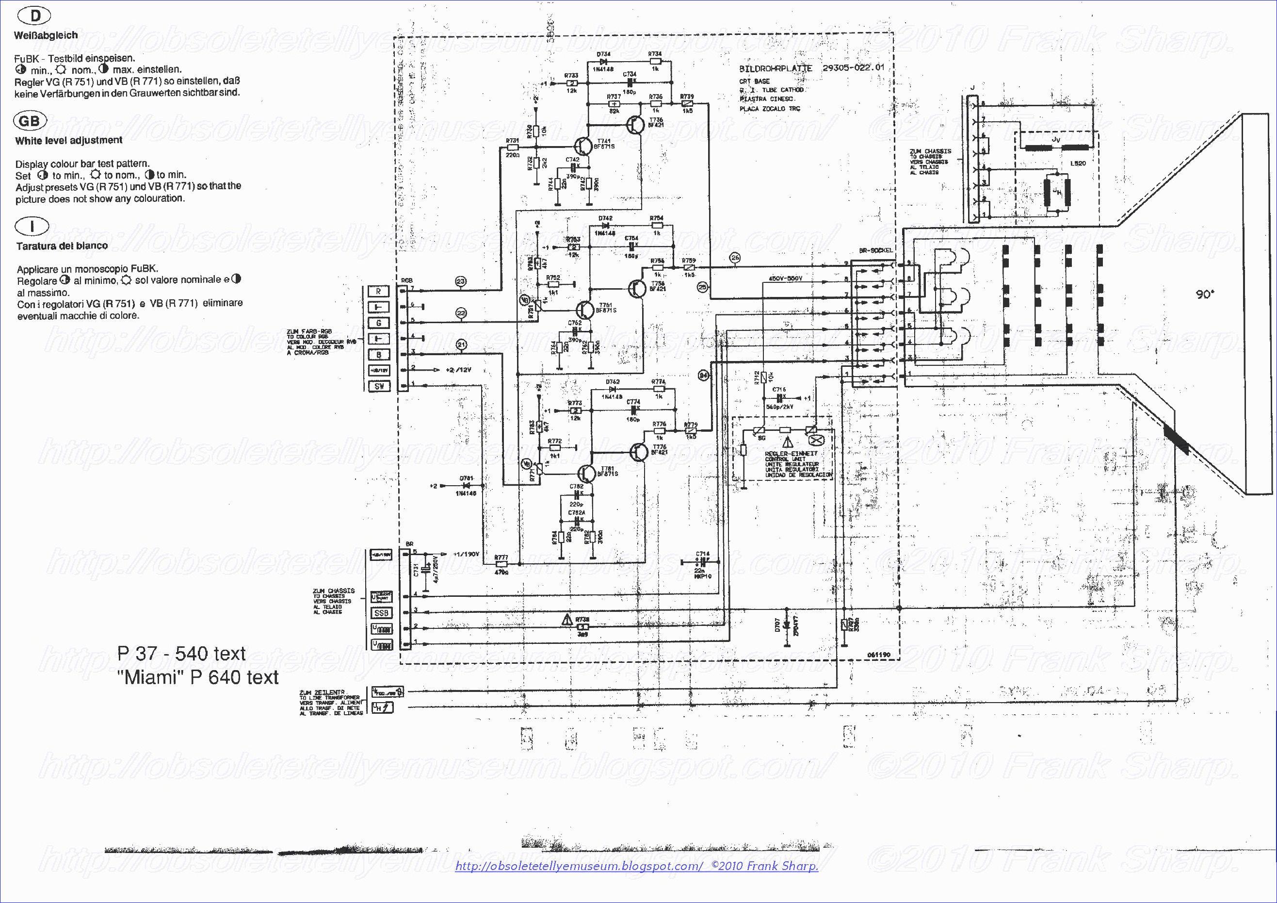
PHILIPS TDA3566A PAL/NTSC decoder: 29504-105.14
FEATURES
· A black-current stabilizer which
controls the black-currents of the
three electron-guns to a level low
enough to omit the black-level
adjustment
· Contrast control of inserted RGB
signals
· No black-level disturbance when
non-synchronized external RGB
signals are available on the inputs
· NTSC capability with hue control.
APPLICATIONS
· Teletext/broadcast antiope
· Channel number display.
GENERAL DESCRIPTION
The TDA3566A is a decoder for the
PAL and/or NTSC colour television
standards. It combines all functions
required for the identification and
demodulation of PAL/NTSC signals.
Furthermore it contains a luminance
amplifier, an RGB-matrix and
amplifier. These amplifiers supply
output signals up to 4 V peak-to-peak
(picture information) enabling direct
drive of the discrete output stages.
The circuit also contains separate
inputs for data insertion, analog and
digital, which can be used for text
display systems.
FUNCTIONAL DESCRIPTION
The TDA3566A is a further
development of the TDA3562A. It has
the same pinning and nearly the
same application. The differences
between the TDA3562A and the
TDA3566A are as follows:
· The NTSC-application has largely
been simplified. In the event of
NTSC the chrominance signal is
now internally coupled to the
demodulators, automatic
chrominance control (ACC) and
phase detectors. The chrominance
output signal (pin 28) is thus
suppressed. It follows that the
external switches and filters which
are required for the TDA3562A are
not required for the TDA3566A.
There is no difference between the
amplitudes of the colour output
signals in the PAL or NTSC mode.
· The clamp capacitor at pins 10, 20
and 21 in the black-level
stabilization loop can be reduced to
100 nF provided the stability of the
loop is maintained. Loop stability
depends on complete application.
The clamp capacitors receive a
pre-bias voltage to avoid coloured
background during switch-on.
· The crystal oscillator circuit has
been changed to prevent parasitic
oscillations on the third overtone of
the crystal. Consequently the
optimum tuning capacitance must
be reduced to 10 pF.
· The hue control has been improved
(linear).
Luminance amplifier
The luminance amplifier is voltage
driven and requires an input signal of
450 mV peak-to-peak (positive
video). The luminance delay line must
be connected between the IF
amplifier and the decoder.
The input signal is AC coupled to the
input (pin 8). After amplification, the
black level at the output of the
preamplifier is clamped to a fixed DC
level by the black level clamping
circuit. During three line periods after
vertical blanking, the luminance
signal is blanked out and the black
level reference voltage
is inserted bya switching circuit.
This black level reference voltage is
controlled via pin11 (brightness). At
the same time the RGB signals are
clamped. Noise and residual signals
have no influence during clamping
thus simple internal clamping circuitry
is used.
Chrominance amplifiers
The chrominance amplifier has an
asymmetrical input. The input signal
must be AC coupled (pin 4) and have
a minimum amplitude of
40 mV peak-to-peak.
The gain control stage has a control
range in excess of 30 dB, the
maximum input signal must not
exceed 1.1 V peak-to-peak,
otherwise clipping of the input signal
will occur.
From the gain control stage the
chrominance signal is fed to the
saturation control stage. Saturation is
linearly controlled via pin 5. The
control voltage range is 2 to 4 V, the
input impedance is high and the
saturation control range is in excess
of 50 dB.
The burst signal is not affected by
saturation control. The signal is then
fed to a gated amplifier which has a
12 dB higher gain during the
chrominance signal. As a result the
signal at the output (pin 28) has a
burst-to-chrominance ratio which is
6 dB lower than that of the input
signal when the saturation control is
set at -6 dB.
The chrominance output signal is fed
to the delay line and, after matrixing,
is applied to the demo
dulator inputpins (pins 22 and 23). These signals
are fed to the burst phase detector. In
the event of NTSC the chrominance
signal is internally coupled to the
demodulators, ACC and phase
detectors.
Oscillator and identification circuit
The burst phase detector is gated
with the narrow part of the sandcastle
pulse (pin 7). In the detector the
(R-Y) and (B-Y) signals are added to
provide the composite burst signal
again.
This composite signal is compared
with the oscillator signal
divided-by-2 (R-Y) reference signal.
The control voltage is available at
pins 24 and 25, and is also applied to
the 8.8 MHz oscillator. The 4.4 MHz
signal is obtained via the divide-by-2
circuit, which generates both the
(B-Y) and (R-Y) reference signals
and provides a 90° phase shift
between them.
The flip-flop is driven by pulsesobtained from the sandcastle
detector. For the identification of the
phase at PAL mode, the (R-Y)
reference signal coming from the PAL
switch, is compared to the vertical
signal (R-Y) of the PAL delay line.
This is carried out in the H/2 detector,
which is gated during burst.
When the phase is incorrect, the
flip-flop gets a reset from the
identification circuit. When the phase
is correct, the output voltage of the
H/2 detector is directly related to the
burst amplitude so that this voltage
can be used for the ACC.
To avoid 'blooming-up' of the picture
under weak input signal conditions
the ACC voltage is generated by peak
detection of the H/2 detector output
signal. The killer and identification
circuits receive their information from
a gated output signal of H/2 detector.
Killing is obtained via the saturation
control stage and the demodulators to
obtain good suppression.

The time constant of the saturation
control (pin 5) provides a
delayedswitch-on after killing. Adjustment of
the oscillator is achieved by variation
of the burst phase detector load
resistance between pins 24 and 25
(see Fig.8).
With this application the trimmer
capacitor in series with the 8.8 MHz
crystal (pin 26) can be replaced by a
fixed value capacitor to compensate
for unbalance of the phase detector.
Demodulator
The (R-Y) and (B-Y) demodulators
are driven by the colour difference
signals from the delay-line matrix
circuit and the reference signals from
the 8.8 MHz divider circuit. The (R-Y)
reference signal is fed via the
PAL-switch. The output signals are
fed to the R and B matrix circuits and
to the (G-Y) matrix to provide the
(G-Y) signal which is applied to the
G-matrix. The demodulation circuits
are killed and blanked by by-passing
the input signals.
NTSC mode
The NTSC mode is switched on when
the voltage at the burst phase
detector outputs (pins 24 and 25) is
adjusted below 9 V.
To ensure reliable application the
phase detector load resistors are
external. When the TDA3566A is
used only for PAL these two 33 kW
resistors must be connected to +12 V
(see Fig.8).
For PAL/NTSC application the value
of each resistor must be reduced to
20 kW (with a tolerance of 1%) and
connected to the slider of a
potentiometer (see Fig.9). The
switching transistor brings the voltage
at pins 24 and 25 below 9 V which
switches the circuit tot the NTSC
mode.
The position of the PAL flip-flop
ensures that the correct phase of the
(R-Y) reference signal is supplied to
the (R-Y) demodulator.
The drive to the H/2 detector is now
provided by the (B-Y) reference
signal. In the PAL mode it is driven by
the (R-Y) reference signal. Hue
control is realized by changing the
phase of the reference drive to the
burst phase detector.
This is achieved by varying the
voltage at pins 24 and 25 between
7.0 V and 8.5 V, nominal position
7.65 V. The hue control characteristic
is shown in Fig.6.
RGB matrix and amplifiers
The three matrix and amplifier circuits
are identical and only one circuit will
be described.
The luminance and the colour
difference signals are added in the
matrix circuit to obtain the colour
signal, which is then fed to the
contrast control stag
e.The contrast control voltage is
supplied to pin 6 (high-input
impedance). The control range is
+5 dB to -11.5 dB nominal. The
relationship between the control
voltage and the gain is linear (see
Fig.3).
During the 3-line period after blanking
a pulse is inserted at the output of the
contrast control stage. The amplitude
of this pulse is varied by a control
voltage at pin 11. This applies a
variable offset to the normal black
level, thus providing brightness
control.
The brightness control range is 1 V to
3.6 V. While this offset level is
present, the black-current input
impedance (pin 18) is high and the
internal clamp circuit is activated. The
clamp circuit then compares the
reference voltage at pin 19 with the
voltage developed across the
external resistor network RA and
RB (pin 18) which is provided by
picture tube beam current.
The output of the comparator is
stored in capacitors connected from
pins 10, 20 and 21 to ground which
controls the black level at the output.
The reference voltage is composed
by the resistor divider network and the
leakage current of the picture tube
into this bleeder. During vertical
blanking, this voltage is stored in the
capacitor connected to pin 19, which
ensures that the leakage current of
the CRT does not influence the black
current measurement.
The RGB output signals can never
exceed a level of 10.6 V. When the
signal tends to exceed this level the
output signal is clipped. The black
level at the outputs (pins 13, 15 and
17) will be approximately 3 V. This
level depends on the spread of the
guns of the picture tube. If a beam
current stabilizer is not used it is
possible to stabilize the black levels at
the outputs, which in this application
must be connected to the black
current measuring input (pin 18) via a
resistor network.
Data insertion
E
ach colour amplifier has a separateinput for data insertion.
A 1 V peak-to-peak input signal
provides a 3.8 V peak-to-peak output
signal.
To avoid the black-level of the
inserted signal differing from the black
level of the normal video signal, the
data is clamped to the black level of
the luminance signal. Therefore AC
coupling is required for the data
inputs.
To avoid a disturbance of the blanking
level due to the clamping circuit, the
source impedance of the driver circuit
must not exceed 150 W. The data
insertion circuit is activated by the
data blanking input (pin 9). When the
voltage at this pin exceeds a level of
0.9 V, the RGB matrix circuits are
switched off and the data amplifiers
are switched on.
To avoid coloured edges, the data
blanking switching time is short. The
amplitude of the data output signals is
controlled by the contrast control at
pin 6. The black level is equal to the
video black level and can be varied
between 2 and 4 V (nominal
condition) by the brightness control
voltage at pin 11.
Non-synchronized data signals do not
disturb the black level of the internal
signals.
Blanking of RGB and data signals
Both the RGB and data signals can
be blanked via the sandcastle input
(pin 7). A slicing level of 1.5 V is used
for this blanking function, so that the
wide part of the sandcastle pulse is
separated from the remainder of the
pulse. During blanking a level of +1 V
is available at the output. To prevent
parasitic oscillations on the third
overtone of the crystal the optimum
tuning capacitance should be 10 pF.
Notes to the characteristics
1. Signal w

ith the negative-going sync; amplitude includes sync pulse amplitude.
2. Indicated is a signal with 75% colour bar, so the chrominance-to-burst ratio is 2.2 : 1.
3. Nominal contrast is specified as the maximum contrast -5 dB and nominal saturation as maximum -6 dB. This figure
is valid in the PAL-condition. In the NTSC-condition no output signal is available at pin 28.
4. Cross coupling is measured under the following condition: input signal nominal, contrast and saturation such that
nominal output signals are obtained. The signals at the output at which no signal should be available must be
compared with the nominal output signal at that output.
5. The signal-to-noise ratio is defined as peak-to-peak signal with respect to RMS noise.
6. All frequency variations are referenced to the 4.4 MHz carrier frequency. All oscillator specifications have been
measured with the Philips crystal 4322 143 ... or 4322 144 ... series.
7. The change in burst with VP is proportional.
8. These signal amplitudes are determined by the ACC circuit of the reference part.
9. This value depends on the gain setting of the RGB output amplifiers and the drift of the picture tube guns. Higher
black level values are possible (up to 5 V) however, in that condition the amplitude of the available output signal is
reduced.
10. The variation of the black-level during brightness control in the three different channels is directly dependent on the
gain of each channel. Discolouration during adjustments of contrast and brightness does not occur because
amplitude and the black-level change with brightness control are directly related.
11. With respect to the measuring pulse.
12. This difference occurs when the source impedance of the data signals is 150 W and the black level clamp pulse width
is 4 ms (sandcastle pulse). For a lower impedance the difference will be lower.
13. For correct operating of the black level stabilization loop, the leading and trailing edges of the sandcastle pulse
(measured between 1.5 V and 3.5 V) must be within 200 ns and 600 ns respectively.
14. The voltage at pins 24 and 25 can be changed by connecting the load resistors (20 kW, 1%, in this condition) to the
slider bar of the hue control potentiometer (see Fig.6). When the transistor is switched on, the voltage at pins 24 and
25 is reduced below 9 V, and the circuit is switched to NTSC mode. The width of the burst gate is assumed to be
4 ms typical.
THE PHILIPS TDA3562A TDA3566 Circuit arrangement for the control of a picture tube :
1. Circuit arrangement for the control of at least one beam current in a picture tube by a picture comprising
a control loop which in one sampling interval obtains a measuring
signal from the value of the beam current on the occurrence of a given
reference level in the picture signal, stores a control signal derived
therefrom until th
e next sampling interval and thereby adjusts the beam
current to a value preset by a reference signal.
and a trigger
circuit which suppresses auxiliary pulses used to generate the beam
current after the picture tube has been started up and issues a
switching signal for the purpose of closing the control loop during the
sampling intervals and for releasing the control of the beam current by
the picture signal after the measuring signal has exceeded the threshold
value,
a change detection arrangement which delivers a change
signal when the stored signal has assumed a largely constant value, and
a logic network which does not release the control of the beam current
by the picture signal outside the sampling intervals until the change
signal has also been issued after the switching signal.
2. Circuit arrangement as set forth in claim 1, in
which the picture signal comprises several color signals for the control
of a corresponding number of beam currents for the display of a color
picture in the picture tube and the control loop stores a part measuring
signal or a part control signal derived therefrom for each color
signal, characterized in that the change detection arrangement includes a
change detector for each color signal which delivers a part change
signal when the relevant stored signal has assumed a largely constant
value, and the logic network does not release the control of the beam
currents by the color signals outside the sampling intervals until the
part change signals have been delivered by all change detectors.
3. Circuit arrangement as set forth in claim 1,
including a comparator arrangement which compares the measuring signal
with the reference signal and derives the control signal from this
comparison, characterized in that the change detection arrangement
detects a change in the control signal with respect to time and issues
the change signal when the control signal has assumed a largely constant
value.
4. Circuit arrangement as set forth in claims 1, 2, 3
including a control signal memory which contains at least one
capacitor, characterized in that the change detection arrangement
delivers the change signal when a charge-reversing current of the
capacitor occuring during the starting up of the picture tube falls
below a limit value.
5. Circuit arrangement as set forth in claim 2,
including a comparator arrangement which compares the measuring signal
with the reference signal and derives the control signal from this
comparison, characterized in that the change detection arrangement
detects a change in the control signal with respect to time and issues
the change signal when the control signal has assumed a largely constant
value.

The invention relates to a circuit arrangement for the control of at least one beam current in a picture tube by a picture signal with a control loop which in one sampling interval obtains a measuring signal from the value of the beam current on the occurrence of a given reference level in the picture signal, stores a control signal derived therefrom until the next sampling interval and by this means adjusts the beam current to a value preset by a reference signal, and with a trigger circuit which suppresses auxiliary pulses used to generate the beam current after the picture tube is turned on and issues a switching signal for the purpose of closing the control loop during the sampling intervals and releasing the control of the beam current by the picture signal after the measuring signal has exceeded a threshold value.
Such a circuit arrangement has been described in Valvo Technische Information 820705 with regard to the integrated color decoder circuit PHILIPS TDA3562A and is used in this as a so-called cut-off point control. In the known circuit arrangement, such a cut-off point control provides automatic compensation of the so-called cut-off point of the picture tube, i.e. it regulates the beam current in the picture tube in such a way that for a given reference level in the picture signal the beam current has a constant value despite tolerances and changes with time (aging, thermal modifications) in the picture tube and the circuit arrangement, thereby ensuring correct picture reproduction.
Such a blocking point control is particularly advantageous for the operation of a picture tube for the display of color pictures because in this case there are several beam currents for different color components of the color picture which have to be in a fixed ratio with one another. If this ratio changes, for example, as the result of manufacturing tolerances or ageing processes, distortions of the colors occur in the reproduction of the color picture. The beam currents, therefore, have to be very accurately balanced. The said cut-off point control prevents expensive adjustment and maintenance time which is otherwise necessary.
Conventional picutre tubes are constructed as cathode-ray tubes with hot cathodes which require a certain time after being turned on for the hot cathodes to heat up. Not until a final operating temperature has been reached do these hot cathodes emit the desired beam currents to the full extent, while gradually rising beam currents occur in the time interval when the hot cathodes are heating up. The instantaneous values of these beam currents depend on the instantaneous temperatures of the hot cathodes and on the accelerating voltages for the picture tube which build up simultaneously with the heating process and are undefined until the end of the heating time. After the picture tube is turned on, these values initially produce a highly distorted picture until the beam currents have attained their final value. These picture distortions after the picture tube is turned on are even further intensified by the fact that the cut-off point control is not yet adjusted to the beam currents which flow after the heating time is over.
For the purpose of suppressing distorted pictures during the heating time of the hot cathodes, the known circuit arrangement has a turn-on delay element o
perating as a trigger circuit which, in essence, contains a bistable
flip-flop. When the picture tube and the circuit arrangement controlling
the beam currents flowing in it are turned on, the flip-flop is
switched into a first state in which it interrupts the supply of the
picture signal to the picture tube. Thus, during the heating time the
beam currents are suppressed, and the picture tube does not yet display
any picture. In sampling intervals which are provided subsequent to
flybacks of the cathode beam into an initial position on the changeover
from the display of one picture to the display of a subsequent picture
and even within the changeover, that is outside the display of pictures,
the picture tube is controlled for a short time in such a way that beam
currents occur when the hot cathodes are sufficiently heated up and an
accelerating voltage is resent. If these currents exceed a certain
threshold value, the flip-flop circuit switches into a second state and
releases the picture signal for the control of the beam currents and the
cut-off point control. It is found, however, that the picture displayed in the picture tube immediately after the switching over of the flip-flop is still not fault-free. Because, in fact, the beam currents are supported during the heating time of the hot cathodes, the cut-off point control cannot respond yet. This response of the cut-off point control takes place only after the beam currents are switched on, i.e. after the flip-flop is switched into the second state and therefore at a time in which the picture signal already controls the beam currents. In this way the response of the blocking point control makes its presence felt in the picture displayed.
With the known circuit arrangement the brightness of the picture gradually increases, during the response of the cut-off point control, from black to the final value.
This slow increase in the picture brightness after the tube is turned on is disturbing to the eyes of the viewer not only in the case of the black-and-white picture tubes with one hot cathode, but especially so in the case of colour picture tubes which usually have three hot cathodes. With a color picture tube, color purity errors can also occur in addition to the change in the picture brightness if, as a result of different speeds of response of the cut-off point control for the three beam currents, there are found to be intermittent variations from the interrelation between the beam currents required for a correct picture reproduction.
SUMMARY OF THE INVENTION
The aim of the invention is to create a circuit arrangement which suppresses the above-described disturbances of brightness and color of the displayed picture when the picture tube is being started.
The invention achieves this aim in that a circuit arrangement of the type mentioned in the preamble contains a change detection arrangement which emits a change signal when the stored signal has assumed an essentially constant value, and a logic network which does not release the control of the beam current by the picture signal until the change signal has also been emitted after the switching signal.

In the circuit arrangement according to the invention, therefore, the display of the picture is suppressed after the picture tube is turned on until the cut-off point control has responded. If the picture signal then starts to control the beam current, a perfect picture is displayed immediately. In this way, all the disturbances of the picture which affect the viewer's pleasure are suppressed. The circuit arrangement of the invention is of simple design and can be combined on one semiconductor wafer with the existing picture signal processing circuits and also, for example, with the known circuit arrangement for cut-off point control. Such an integrated circuit arrangement not only requires very little space on the semiconductor wafer, but also needs no additional external leads. Thus the circuit arrangement of the invention can be arranged, for example, in an integrated circuit which has precisely the same external connections as known integrated circuits. This means that an integrated circuit containing the circuit arrangement of the invention can be directly incorporated in existing equipment without the need for additional measures.
In one embodiment of the said circuit arrangement, in which the picture signal contains several color signals for the control of a corresponding number of beam currents for representing a color picture in the picture tube and, for each color signal, the control loop stores a part measuring signal or a part control signal derived from it, the change detection arrangement contains a change detector for each color signal which emits a part change signal when the relevant stored signal has assumed an essentially constant value, and the logic network does not release the control of the beam currents by the color signals outside the sampling intervals until the part change signals have been emitted from all change detectors.
In principle, therefore, such a circuit arrangement has three cut-off point controls for the three beam currents controlled by the individual color signals. To reduce the cost of the circuitry, the measuring stage is common to all the cut-off point controls, as in the known circuit arrangement. All three beam currents are then measured successively by this measuring stage. In this way, a part measuring signal or a part control signal derived from it is obtained for each beam current and is stored sesparately according to which of the beam currents it belongs. Changes in the part measuring signal or part control signal are detected for each beam current by one of the change detectors each time. Each of these change detectors issues a part change signal to the logic network. The latter does not release the control of the beam currents by the picture signal outside the sampling intervals until all the part change signals indicate that the part measuring signal or the part control signal, as the case may be, remains constant. This ensures that the cut-off point controls for the beam currents of all color signals have responded when the picture appears in the picture tube.
In a further embodiment of the circuit arrangement according to the invention with a comparator arrangement which compares the measuring signal with the reference signal and derives the control signal from this comparison, the change detection arrangement detects a change in the control signal with respect to time and issues the change signal when the control signal has assumed an essentially constant value. In the case of the representation of a color signal the comparator arrangement derives several part control signals, whose changes with time are detected by the change detectors, from a corresponding comparison of the part measuring signals with the reference signal. In this embodiment of the circuit arrangement of the invention, preference is given to storage of only the control signal or the part control signals for the purpose of controlling the beam currents.
In another embodiment of the circuit arrangement of t
he
invention which includes a control signal memory which contains at
least one capacitor in which a charge or voltage corresponding to the
control signal is stored, the change detection arrangement issues the
change signal when a charge-reversing current of the capacitor occurring
during the turning on of the picture tube has fallen below a limit
value and has thus at least largely decayed. Such a detection of the
steady state of the cut-off point control is independent of the actual
magnitude of the control signal and therefore independent of, for
example, the level of the picture tube cut-off voltage, circuit
tolerances or ageing processes in the circuit arrangement or the picture
tube.Detection of whether or not the charge-reversing current exceeds the limit value is performed preferentially by a current detector which is designed with a current mirror system which is arranged in a supply line to a capacitor acting as a control signal store. A current mirror arrangement of this kind supplies a current which coincides very precisely with the charging current of the capacitor. This current is then compared, preferably in a further device contained in the change detection arrangement, with a current representing a limit value or, after conversion into a voltage, with a voltage representing the limit value. The change signal is obtained from the result of this comparison.
On the other hand, digital memories may also be used as control signal memories, especially when the picture signal is supplied as a digital signal and the blocking point control is constructed as a digital control loop. In such a case, the comparator arrangement, the change detection arrangement and the trigger circuit are also designed as digital circuits. Then, the change detection arrangement advantageously forms the difference of the signals stored in the control signal memory in two successive sampling intervals and compares this with the limit value formed by a digital value. If the difference falls short of the limit value, the change signal is issued.
BRIEF DESCRIPTION OF THE DRAWINGS
An embodiment of the invention is described in greater detail below with the aid of the drawings in which:
FIG. 1 shows a block circuit diagram of the embodiment,
FIG. 2 shows a somewhat more detailed block circuit diagram of the embodiment,
FIG. 3 shows time-dependency diagrams of some signals occurring in the circuit diagram shown in FIG. 2, and
FIG. 4 shows a somewhat moredetailed block circuit diagram of a part of the circuit diagram shown in FIG. 2.
DETAILED DESCRIPTION OF THE INVENTIONFIG. 1 shows a block circuit diagram of a circuit arrangement to which a picture signal is fed via a first input 1 of a combinatorial stage 2. From the output 3 of the combinatorial stage 2 the picture signal is fed to the picture signal input of a controllable amplifier 5 which at an output 6 issues a current controlled by the picture signal. This current is fed via a measuring stage 7 to a hot cathode 8 in a picture tube 9 and forms therein a beam current of a cathode ray by means of which a picture defined by the picture signal is displayed on a fluorescent screen of the picture tube 9.
The measuring stage 7 measures the current fed to the hot cathode 8, i.e. the the beam current in the picture tube 9, and at a measuring signal output 10, issues a measuring signal corresponding to the magnitude of this current. This is fed to a measuring signal input 11 of a comparator arrangement 12 to which a reference signal is supplied at a reference signal input 13. In a preferably periodically recurring sampling interval during the occurrence of a given reference level in the picture signal, the comparator arrangement 12 forms a control signal from the value of the measuring signal fed to the measuring signal input 11 at this time, on the one hand, and the reference signal, on the other, by means of substraction and delivers this at a control signal output 14. From there the control signal is fed to an input 15 of a control signal memory 16 and is stored in the latter. The control signal is fed via an output 17 of the control signal memory 16 to a second input 18 of combinatorial stage 2 in which it is combined with the picture signal, e.g. added to it.
The combinatorial stage 2, the controllable amplifier 5, the measuring stage 7, the comparator arrangement 12 and the control signal memory 16 form a control loop with which the beam current is guided towards the reference signal in the sampling interval during the occurrence of the reference level in the picture signal. For the reference level, use is made in particular of a black level or a level with small, fixed distance from the black level, i.e. a value in the picture signal which produces a black or almost back picture area in the displayed picture in the picture tube. In this case the control loop, as described, forms a cut-off point control for the picture tube. If the reference level is away from the black level, the control loop is also designated as quasi-cut-off-point control.
The circuit arrangement as shown in FIG. 1 also has a trigger circuit 19 to which the measuring signal from the measuring signal output 10 of measuring stage 7 is fed at a measuring signal input 20. When the circuit arrangement and therefore the picture tube are turned on, the trigger circuit 19 is set in a first state in which by means of a first connection 21 it blocks the comparator arrangement 12 in such a way that the latter delivers no control signal or a control signal with the value zero at its control signal output 14. This prevents the control signal memory 16 from storing undefined values for the control signal at the moment of turning on or immediately thereafter.

The circuit arrangement shown in FIG. 1 also has a logic network 22 which is connected via a second connection 23, by means of which a switching signal is supplied, with the trigger circuit 10 and via a third connection 24 with the controllable amplifier 5. Like the trigger circuit 19, the logic network 22 also finds itself controlled, when the circuit arrangement is being turned on, by the switching signal in a first stage in which by way of the third connection 24 it blocks the controllable amplifier 5 with a blocking signal in such a way that no beam currents controlled by the picture signal can yet flow in the picture tube 9. Thus the picture tube 9 is blanked; no picture is displayed yet.
When picture tube 9 is turned on, the hot cathode 8 is still cold so that no beam current can flow anyhow. The hot cathode 8 is then heated up and, after a certain time, begins gradually to emit electrons as the result of which a cathode ray and therefore a beam current can form. However, during the heating up of the hot cathode 8, and because the cut-off point control has not yet responded, this would be undefined and is therefore suppressed by the controllable amplifier 5. Only in time intervals which are provided immediately subsequent to flybacks of the cathode rays into an initial position at the changeover from the display of one image to that of a subsequent image, but even before the start of the display of the subsequent image, the controllable amplifier 5 delivers a voltage in the form of an auxiliary pulse for a short time at its output 6, and when the hot cathode 8 in the picture tube 9 is heated up sufficiently, this voltage produces a beam current. The time interval for the delivery of this voltage is selected in such a way that a cathode ray produced by its does not produce a visible image in the picture tube 9, and coincides for example with the sampling interval.
The measuring stage 7 measures the short-time cathode current pro
duced in the manner described and, at its
measuring signal output 10, delivers a corresponding measuring signal
which is passed via measuring signal output 20 to the trigger circuit
19. If the measuring signal exceeds a definite preset threshold value,
the trigger circuit 19 is switched into a second state in which it
releases the comparator arrangement 12 via the first connection 12 and,
by means of the second connection 23, uses the switching signal to also
bring the logic network 22 into a second state. The comparator
arrangement 12 now evaluates the measuring signal supplied to it via the
measuring signal input 11, i.e. it forms the control signal as the
difference between the measuring signal and the reference signal
supplied via the reference signal input 13. The control signal is
transferred via the control signal output 14 and the input 15 into the
control signal memory 16. It is subsequently fed via the output 17 of
the control signal memory 16 to the second input 18 of the combinatorial
stage 2 and is there combined with the picture signal at the first
input 1, e.g. is superimposed on it by addition. This superimposed
picture signal is fed to the picture signal input 4 of the controllable
amplifier 5 via the output 3 of the combinatorial stage 2. In the second state of the logic network 22 the controllable amplifier 5 is switched via the third connection 24 by the blocking signal in such a way that the picture signal controls the beam currents only during the sampling intervals and that, for the rest, no image appears yet in the picture tube. The cut-off point control now gebins to respond, i.e. the value of the control signal is changed by the control loop comprising the combinatorial stage 2, the controllable amplifier 5, the measuring stage 7, the comparator arrangement 12 and the control signal memory 16 until such time as the beam current in the picture tube 9 at the blocking point or at a fixed level with respect to it is adjusted to a value preset by the reference signal. For this purpose the sampling interval, in which the picture signal controls the beam current via the controllable amplifier 5 is selected in such a way that within it the picture signal just assumes a value corresponding to the cut-off point or to a fixed level with respect to it.

During the response of the cut-off point control the control signal fed to the control signal memory 16 changes continuously. Between the control signal output 14 of the comparator arrangement 12 and the input 15 of the control signal memory 16 is inserted a changed detection arrangement 25 which detects the variations of the control signal. When the cut-off point control has responded, i.e. the control signal has assumed a constant value, the change detection arrangement 25 delivers a change signal at an output 26 which indicates that the steady stage of the cut-off point control is achieved and the said signal is fed to a change signal input 27 of the logic network 22. The logic network then switches into a third state in which via the third connection 24 it enables the controllable amplifier 5 in such a way that the beam currents are now controlled without restriction by the picture signal. Thus a correctly represented picture appears in the picture tube 9.
A shadow-like representation of individual constituents of the circuit arrangement in FIG. 1 is used to indicate a modification by which this circuit arrangement is equipped for the representation of color pictures in the picture tube 9. For example, three color signals are fed in this case as the picture signal via the input 1 to the combinatorial stage 2. Accordingly, the input 1 is shown in triplicate, and the combinatorial stage 2 has a logic element, e.g. an adder, for example of these color signals. The controllable amplifier 5 now has three amplifier stages, one for each of the color signals, and the picture tube now contains three hot cathodes 8 instead of one so that three independent cathode rays are available for the three color signals.
However, to simplify the circuit
arrangement and to save on components, only one measuring stage 7 is
provided which measures all three beam currents successively. Also, the
comparator arrangement 12 forms part control signals from the
successively arriving part measuring signals for the individual beam
currents with the reference signal, and these part control signals are
allocated to the individual color signals and passed on to three storage
units which are contained in the control signal memory 16. From there,
the part control signals are sent via the second input 18 of the
combinatorial stage 2 to the assigned logic elements. The circuit arrangement thus forms three independently acting control loops for the cut-off point control of the individual color signals, in which case only the measuring stage 7 and to some extent at least the comparator arrangement 12 are common to these control loops.
The change detection arrangement 25 now has three change detectors each of which detects the changes with time of the part control signals relating to a color signal. Then via the output 26 each of these change detectors delivers a part change signal to the change signal input 27 of the logic network 22. These part change signals occur independently of one another when the relevent control loop has responded. The logic network 22 evaluates all three part change signals and does not switch into its third stage until all part change signals indicate a steady state of the control loops. Only then, in fact, is it ensured that all the color signals from the beam currents controlled by them are correctly reproduced in the picture tube, and thus no distortions of the displayed image, especially no color purity errors, occur. The color picture displayed then immediately has the correct brightness and color on its appearance when the picture tube is turned on.
FIG. 2 shows a somewhat more detailed block circuit diagram of an embodiment of a circuit arrangement equipped for the processing of a picture signal containing three colour signals. Three color signals for the representation of the colors red, green and blue are fed to this circuit arrangement via three input terminals 101, 102, 103. A red color signal is fed via the first input terminal 101 to a first adder 201, a green colour signal is fed via the second input terminal to a second adder 202, and a blue colour signal is fed via the third input terminal 103 to a third adder 203. From outputs 301, 302 and 303 of the adders 201, 202, 203 the color signals are fed to amplifier stages 501, 502 and 503 respectively. Each of the amplifier stages contains a switchable amplifier 511, 512 and 513, an output amplifier 521, 522 and 523 as well as a measuring transistor 531, 532 and 533 respectively. The emitters of these measuring transistors 531, 532, 533 are each connected to a hot cathode 801, 802, 803 of the picture tube 9 and deliver the cathode currents, whereas the collectors of measuring transistors 521, 532, 533 are connected to one another and to a first terminal 701 of a measuring resistor 702 the second terminal of which 703 is connected to earth. The current gain of the measuring transistors 531, 532 and 533 is so great that the
ir collector currents coincide almost with the cathode currents.
By measuring the voltage drop produced by the cathode currents at the
measuring resistor 802 it is then possible to measure the cathode
currents and therefore the beam currents in the picture tube 9 with
great accuracy. The falling voltage at the measuring resistor 702 is fed as a measuring signal to an input 121 of a buffer amplifier 120 with a gain factor of one, at the output 122 of which the unchanged measuring signal is therefore available at low impedance. From there it is fed to a first terminal 131 of a reference voltage source 130 which is connected with its second terminal 132 to inverting inputs 111, 112 and 113 of three differential amplifiers 123, 124, 125 respectively. The differential amplifiers 123, 124, 125 also each have a non-inverting input 114, 115, and 116 respectively. These are connected to each other at a junction 117, to earth via a leakage current storage capacitor 126 and to the output 122 of the buffer amplifier 120 via decoupling resistor 118 and a leakage current sampling switch 119. In addition, the input 121 of the buffer amplifier 120 can be connected to earth via a short-circuiting switch 127.
From outputs 141, 142, and 143 respectively of the differential amplifiers 123, 124 and 125, part control signals relating to the individual color signals are fed in the form of electrical voltages (or, in some cases, charge-reversing currents) via control signal sampling switches 154, 155 and 156, in the one instance, to first terminals 151, 152 and 153 respectively of control signal storage capacitors 161, 162, 163 which form the storage units of the control signal memory 16 and store inside them charges corresponding to these voltages (or formed by the charge-reversing currents). In the other instance, the part control signals are fed to second inputs 181, 182 and 183 of the first, second or third adders 201, 202, 203 respectively and are added therein to the color signals from the first, second or third input terminals 101, 102 or 103 respectively.
The operation of the comparator arrangement 12 which consists mainly of the buffer amplifier 120, the reference voltage source 130 and differential amplifiers 123, 124, 125 will be explained below with the aid of the pulse diagrams in FIG. 3. FIG. 3a shows a horizontal blanking signal for a television signal which, as the picture signal, controls the beam currents in the picture tube 9. In this diagram, H represents horizontal blanking pulses which follow one another in the picture signal at the time interval of one line duration and by means of which the beam currents are switched off during line flyback between the display of the individual picture lines in the picture tube. FIG. 3b shows a vertical blanking pulse V by means of which the beam currents are switched off during the change ober from the display of one picture to the display of the next picture. FIG. 3c shows a measuring signal control pulse VH which is formed from a vertical blanking pulse lengthened by three line duration.
The short-circuiting switch 127 is now controlled in such a way that it is non-conducting only throughout the duration of the measuring signal control pulse VH and during the remaining time short-circuits the input 121 of the buffer amplifier 120 to earth. This means that a measuring signal only reaches the comparator arrangement 12 during frame change so that the parts of the picture signal which control the beam currents producing the picture in the picture tube exert no influence on comparator arrangement 12 and therefore on the blocking point control.
Throughout the duration of the measuring signal control pulse VH, the measuring signal from output 122, reduced by a reference voltage issued by the reference voltage source 130 between its first 131 and its second terminal 132, is present at the inverting inputs 111, 112, 113 of differential amplifiers 123, 124, 125. If the differential amplifiers 123, 124, 125 were not present, this difference would be fed directly as part control signals to the control signal storage capacitors 161, 162, 162. The differential amplifiers 123, 124, 125 amplify the difference and thus form the control amplifiers of the control loops.
The comparator arrangement 12 further contains a device for compensation of the influence of any leakage currents occurring in the picture tube 9. For this purpose, a voltage to which the leakage current storage capacitor 126 is charg
ed is fed to the non-inverting inputs 114, 115, 116 of the
three differential amplifiers 123, 124 and 125. The charging is
performed by the measuring signal from output 122 of the buffer
amplifier 120 via the decoupling resistor 118 and the leakage current
sampling switch 119 which is closed only within the period of the
vertical blanking pulse V, and in certain cases only during part of the
latter. Within this time the beam currents are, in fact, totally
switched off by the picture signal so that in certain cases only a
leakage current flows through the measuring resistor 702. Consequently,
throughout the duration of the vertical blanking pulse V the measuring
signal corresponds to this leakage current. Because the leakage current
also flows during the remaining time, even outside the duration of the
vertical blanking pulse the measuring signal contains a component
originating from the leakage current which therefore is also contained
in the voltage fed to the inverting inputs 111, 112, 113 of differential
amplifiers 123, 124, 125 and is subtracted out in the differential
amplifiers 123, 124, 125. The part control signal is fed from output 141 of differential amplifier 123 by the first control signal sampling switch 154 to the first terminal 151 of the first control signal storage capacitor 161 during the period of a storage pulse L1 and is stored in the said capacitor. Similarly, the part control signal from output 143 of differential amplifier 125 is fed to the third control signal storage capacitor 163 during the period of a storage pulse L2 and the part control signal from output 142 of differential amplifier 124 is fed to the second control signal storage capacitor 162 during a storage pulse L3. The storage pulses L1, L2 and L3 are illustrated in FIGS. 3d, e and f. They lie in sequence in one of the three line periods by which the measuring signal control pulse VH is longer than the vertical blan
king pulse V. These three line periods form
the sampling interval for the measuring signal or the part measuring
signals, as the case may be. During the remaining periods the outputs,
141, 152, 143 of the differential amplifiers 123, 124, 125 are isolated
from the control signal storage capacitors 161, 162, 163 so that no
interference can be transmitted from there and any distortion of the
stored part control signals caused thereby is eliminated. For the
duration of storage pulses L1, L2 and L3 the color signals at the input
terminals 101, 102, 103 are at their reference level i.e. in the present
embodiment at a level, corresponding to the blocking point or at a
fixed level with respect to it so that the control loops can adjust to
this level.The switchable amplifiers 511, 512, and 513 each receive at each input 241, 242, 243 a blanking signal BL1, BL2, BL3 respectively, the curves of which are shown in FIGS. 3g, h, i. These blanking signals interrupt the supply of the color signals during line flybacks and frame change, i.e. during the period of the measuring signal control pulse VH, and thus the beam currents in these time intervals are switched off. Naturally, the red color signal is let through during the first line period after the end of the vertical blanking pulse V, the blue color signal during the second line period after the end of the vertical blanking pulse V and the green color signal during the third line period after the end of the vertical blanking pulse V by the switchable amplifiers 511, 512, 513 respectively so that they can control the beam currents. Blanking signals BL1, BL2 and BL3 also provide for interruptions in the frame change blanking pulse, which corresponds to the measuring signal control pulse, in the corresponding time intervals. In these time intervals the beam currents are measured and part control signals are determined from the part measuring signals and stored in the control signal storage capacitors 161, 162, 163.
The circuit arrangement shown in FIG. 2 further contains a trigger circuit 19 to which a supply voltage is fed via a supply terminal 190. Via a reset input 191 a voltage is also
supplied to
the trigger circuit 19 from a third terminal 133 of the reference
voltage source 130. When the circuit arrangement is turned on, this
voltage is designed so as to be delayed with respect to the supply
voltage so that when the circuit arrangement is brought into operation
the interplay of the two voltages produces a switch-on reset signal such
that a low-value voltage pulse occurs at the reset input 191 during
turn on, which means that the trigger circuit 19 is set in its first
state. The reset input 191 can also be connected to another circuit of
any configuration which generates a switch-on reset signal when the
picture tube is turned on. The trigger circuit 19 is further connected via a second connection 23 to a logic network 22 which, when the circuit arrangement is turned on, is also set into a first state via the second connection 23. In this first state the logic network 22 delivers a blocking signal at a blocking output 240 which is fed to the three switchable amplifiers 511, 512, 513. By this means the supply of the color signals to the output amplifiers 521, 522, 523 is interrupted completely so that no beam currents can be generated by these. No picture is therefore displayed.
An insertion signal EL which extends over the three line periods by which the measuring signal control pulse VH is longer than the vertical blanking pulse V, i.e. over the sampling interval, is also fed via a line 233 to the trigger circuit 19 and the logic netw
ork 22. As long as the trigger circuit 19
is in its first state, this insertion pulse EL is issued via a control
output 192 from the trigger circuit 19 and fed to the pulse generator
244. During the period of the insertion pulse EL this generator produces
a voltage pulse of a definite magnitude and passes this to output
amplfiiers 521, 522, 523 as an auxiliary pulse via switching diodes 245,
246, 247. By this means the beam currents are switched on for a short
time so as to receive a measuring signal despite the disconnected color
signals as soon as at least one of the hot cathodes 801, 802, 803
delivers a beam current. In its first state the trigger circuit 19 also delivers a signal via a control line 211, and this signal is used to switch the outputs 141, 142, 143 of the differential amplifiers 123, 124, 125 to earth potential or practically to earth potential. This suppresses effects of voltages at the inputs 111 to 116 of the differential amplifiers 123, 124, 125, especially effects of the reference voltage source 130 which may in some cases initiate incorrect charging of the control signal storage capacitors 161, 162, 163.
The measuring signal produced by means of the pulse generator 244 at the input 121 of the buffer amplifier 120 is also fed to the trigger circuit 19 via a measuring signal input 20. If it exceeds a preset threshold value, the trigger circuit 19 switched into its second state. The logic network 22 is then also switched into its second state via the second connection 23. The differential amplifiers 123, 124, 125, too, are triggered by the signal along the control line 211 into issuing a control signal defined by the difference in the voltages at its inputs 111 to 116. The pulse generator 244 is blocked by the control output 192. The blocking signal issued from the blocking output 240 of the logic network 22 now turns on the switchable amplifiers 511, 512, 513 in the time intervals defined by the storage pulses L1, L2, L3 in such a way that in these time intervals the color signals can produce beam currents to form a measuring signal by which the control loops respond. However, the display of the picture is still suppressed. The control signal storage capacitors 161, 162, 163 are charged up in this process. In the leads to the first terminals 151, 152, 153 there are change detectors 251, 252, 253 which detect the changes of the charging currents of the control signal storage capacitors 161, 162, 163 and at their outputs 261, 262, 263 in each case deliver a part change signal when the charging current of the control signal storage capacitor in question has decayed and thus the relevant control loop has responded. The part change signals are fed to three terminals 271, 272, 273 of the change signal input 27 of the logic network 22.
When part change signals are present from all change detectors 251, 252, 253, when therefore all control loops have responded, the logic network 22 switches from its second to its third state. The blocking signal from the blocking output 240 is now completely disconnected such that the switchable amplifiers 511, 512, 513 are now switched only by the blanking signals BL1, BL2, BL3. The colour signals are then switched through to the output amplifiers 521, 522, 523 and the picture is displayed in the picture tube.
FIG. 4 shows an embodiment for a trigger circuit 19 and a logic network 22 of the circuit arrangements as shown in FIGS. 1 or 2. The trigger circuit 19 contains a flip-flop circuit formed from two NAND-gates 194, 195 to which the switch-on reset signal, by which the trigger circuit 19 is returned to its first stage, is fed via the reset input 191. All the elements of the circuit arrangement in FIG. 4 are shown in positive logic. Thus, a short-time low voltage at the reset input 191 immediately after the circuit arrangement is started up is used to set the flip-flop circuit 194, 195 in such a way that a high voltage occurs at the output of the second NAND gate 194 and a low voltage at the output of the second NAND gate 195. The low voltage at the output of the second NAND gate 195 blocks differential amplifiers 123, 124, 125 via the control line 211 in the manner described.
The insertion pulse EL is fed via the line 233 to the trigger circuit 19, is combined via an AND gate 196 with the signal from the output of the first NAND gate 194 and is delivered at the control output 192 for the purpose of controlling the pulse generator 244.
The signals from the outputs of the NAND-gates 194, 195 are fed via a first line 231 and a second line 232 of the second connection 23 as a switching signal to the logic network 22. The first line 231 is connected to reset inputs R of three part change signal memories 221, 222, 223 in the form of bistable flip-flop circuits which when the circuit arrangement is
started up are reset via the
first line 231 in such a way that they carry a low voltage at their
outputs Q. The second line 232 of the second connection 23 leads via
three AND gates 224, 225, 226 to setting inputs S of the three part
change signal memories 221, 222, 223. By means of the AND gates 224,
225, 226 the signal on the second line 232 of the second connection 23
is combined each time with one of the part change signals supplied via
the terminals 271, 272, 273. The signals from the outputs Q of the part
change signal memories 221, 222, 223 are combined by means of a
collecting gate 227 in the form of an NAND gate and are held ready at
its output 228. The measuring signal is fed to the trigger circuit 19 via the measuring signal input 20 and passed to a first input 197 of a threshold detector 198 to which at a second input a threshold value, in the form of a threshold voltage for example, produced by a threshold generator 199 is also supplied. When the voltage at the first input 197 of the threshold detector 198 is smaller than the voltage delivered by the threshold generator 199, the threshold detector 198 delivers a high voltage at its output 200. When, on the other hand, the voltage at the first input 197 is greater than the voltage of the threshold generator 199, the voltage at the output 200 jumps to a low value. This voltage is supplied as the setting signal of the flip-flop circuit 194, 195, reverses the latter and thereby switches the trigger circuit 19 into its second state when the voltage at the first input 197 exceeds the voltage of the threshold generator 199.
Between the output 200 and the flip-flop circuit 194, 195 in the circuit arrangem
ent
shown in FIG. 4 there is inserted an inquiry gate 181 in the form of an
OR gate to which an inquiry pulse is fed via an inquiry input 193 of
the trigger circuit 19. This ensures that the flip-flop circuit 194, 195
is switched over only at a time fixed by the inquiry pulse--in the
present case a negative voltage pulse--and not at any other times due to
disturbances. As such an inquiry pulse it is possible to use, for
example, a pulse which occurs in the second line period after the end of
the vertical blanking pulse V, i.e. one which largely corresponds to
the storage pulse L2. After the switching over of the flip-flop circuit 194, 195 corresponding to the setting of the trigger circuit 19 into the second state, appropriately modified signals are supplied via the control line 211 and the output 192 for the purpose of controlling the pulse generator 244 and the differential amplifiers 123, 124, 125. Modified voltages also appear on the lines 231, 232 of the second connection 23, and these voltages release the part change signal memories 221, 222, 223 such that they can each be set when the part change signals reach the terminals 271, 272, 273.
In certain cases, a further flip-flop circuit 234 is inserted in the lines 231, 232 to delay the signals passing along these lines; this is reset via the first line 231 when the circuit arrangement is started up and thus it also resets the part change signal memories 221, 222, 223. However, after the trigger circuit 19 is switched into the second state the further flip-flop circuit 234 is not set via the second line 232 of the second connection 23 until a release pulse arrives via a release input 235 and another AND gate 236, for example a period of approximately the interval of two vertical blanking pulses V after the switching of the trigger circuit 19 into the second state. In this way it is possible to bridge a period of time in which no defined signal values are present at the terminals 271, 272, 273.
The signal at the output 228 of the collecting gate 227 changes its state when the last of the three part change signals has also arrived and has set the last of the three part change signal memories. The signal is then combined via a gate arrangement 229 of two NAND gates and one AND gate with the insertion pulse EL of line 223 and with the signal on the second line 232 of the second connection 23 or from the output Q of the further flip-flop circuit 234 to the blocking signal delivered at the blocking output 24 which is fed to the switchable amplifiers 511, 512, 513.
FIGS. 31, m, n show the combinations of the blocking signal with the blanking signals BL1, BL2, and BL3 at the blanking inputs 241, 242, 243 of the switchable amplifiers 511, 512, 513 in the form of logic AND operations. The dot-dash lines show resulting insertion signals A1, A2, A3 formed by these operations after the starting up of the circuit arrangement and before the occurrence of a beam current, i.e. in the first state of the logic network 22. Here the resulting insertion signals A1, A2, A3 are constant at low level. The dash curves show the resulting insertion signals A1, A2, A3 after the appearance of a beam current and before the steady state of the cut-off point control is reached, i.e. in the second state of the logic network 22, while the continuous curves represent the resulting insertion signals A1, A2, A3 in the steady state of the cut-off point control, i.e. in the third state of logic network 22. The dash curves have similar shapes to storage pulses L1, L2, L3, whereas the continuous curves correspond in shape to the inverses of the blanking signals BL1, BL2, BL3. In this case a high level of the resulting insertion signals A1, A2 or A3 means that the switchable amplifier 511, 512 or 513 feeds the colour signal to the relevant output amplifier 521, 522 or 523 respectively, whereas a low level in the resulting insertion signal A1, A2 or A3 means that the relevant switchable amplifier 511, 512 or 513 is blocked for the color signal.
The circuit arrangement described is designed in such a way that the trigger circuit 19 remains in its second state and logic network 22 remains in its third state even if charging currents reappear at the difference signal storage cpacitors 161, 162, 163 due to disturbances during the operation of the circuit arrangement. The cutoff point control then makes readjustments without the displayed picture being disturbed.
In the circuit arrangement shown in F
IG. 2, the green
color signal can also be let through during the second line period after
the end of the vertical blanking pulse V and the blue color signal
during the third line period after the end of the vertical blanking
pulse V by the switchable amplifiers 511, 512, 513 for the purpose of
controlling the beam currents. The storage pulses L2 and L3 at the
control signal sampling switches 155 and 156 and the second and third
blanking signals BL2 and BL3 at the blanking inputs 242 and 243 are then
to be interchanged. The resulting insertion signals A2 and A3 as shown
in FIGS. 3m and n are also interchanged then accordingly. In FIG. 2 a dashed line is used to indicate which components of the circuit arrangement can be combined advantageously to form an integrated circuit. The first terminals 151, 152, 153 of the difference signal storage capacitors 161, 162, 163, one terminal 128 of leakage current storage capacitor 126, three terminals 524, 525, 526 in the leads to the output amplifiers 521, 522, 523 as well as a line connection 704 between the first terminal 701 of the measuring resistor 702 and the input 121 of the buffer amplifier 120 will then form the connecting contacts of this integrated circuit.
SIEMENS SDA3302 / SDA3402
Functional Description
Combined
with a VCO (tuner) the SDA 3302 device, with four hardware-switched
chip addresses, forms a digitally programmable phase-locked loop for use
in television sets with PLL frequency-synthesis tuning. The PLL permits
precise crystal-controlled setting of the frequency of the tuner
oscillators between 16 and 1300 MHz in increments of 62.5 kHz. The
tuning process is controlled by a microprocessor via an I2C bus. The
crystal oscillator generates a sinusoidal signal suppressing the
higher-order harmonics, which reduces the moiré noise considerably.
Circuit Description
The
tuner signal is capacitively coupled at the UHF/VHF input and
subsequently amplified. The reference input REF should be decoupled to
ground using a capacitor of low series inductance. The signal passes
through an asynchronous divider with a fixed ratio of P = 8, an
adjustable divider with ratio N = 256 through 32767 and is then compared
in a digital phase/frequency detector to a reference frequency fREF of
7.8125 kHz. The latter is derived from a balanced, low-impedance 4 MHz
crystal oscillator (pin Q1, Q2), whose output signal is divided by Q =
512. The phase detector has two outputs UP and DOWN that drive the two
current sources I+ and I– of a charge pump. If the negative edge of the
divided VCO signal appears prior to the negative edge of the reference
signal, the I+ current source pulses for the duration of the phase
difference. In the reverse case the I– current source pulses. When the
two signals are in phase, the charge-pump output (PD) goes high-
impedance (PLL is locked). An active low-pass filter integrates the
current pulses to generate the tuning voltage for the VCO (internal
amplifier an external transistor at the UD output and an external RC
circuitry). The charge-pump output can also be set to high-impedance
state when control bit T0 = 1. Here it should be noted, however, that
the tuning voltage can alter over a long period in the high-impedance
state as a result of self-discharge in the peripheral circuitry. UD can
be disconnected internally by the control bit OS to enable external
adjustments. By means of a control bit 5I the pump current can be
switched between two values by software. This switchover permits
alteration of the control response of the PLL in the locked-in state. In
this way different VCO gains in the different TV bands can be
compensated for example.
Data are exchanged between the processor
and the PLL on the I2C bus. The clock is produced by the processor
(input SCL), while pin SDA works as an input or output depending on the
direction of the data (open collector; external pullup resistor). Both
inputs have hysteresis and a lowpass characteristic, which enhances the
noise immunity of the I2C bus. The data from the processor are applied
to an I2C bus controller and filed in registers according to their
function. When the bus is free, both lines are in the marking state
(SDA, SCL are high). Each telegram begins with a start condition and
ends with the stop condition. Start condition: SDA goes low while SCL
remains high; stop condition: SDA goes high while SCL remains high. All
further data exchanges occur while SCL is low and are accepted by the
controller with the positive clock edge. For what follows, refer to the
table of logic allocations. All telegrams are transmitted byte by byte,
followed by a ninth clock pulse, during which the controller puts the
SDA line on low (acknowledge condition). The first byte consists of
seven address bits, with which the processor selects the PLL from a
number of peripheral devices (chip select). The eighth bit is always
low. In the data portion of the telegram the first bit of the first or
third data byte determines whether a divider ratio or control
information follows. In each case the byte following the first byte must
be of the same data type (or a stop condition). When the supply voltage
is applied, a power-on reset circuit prevents the PLL from putting the
SDA line on low, which would block the bus.
TDA8214B HORIZONTAL AND VERTICAL DEFLECTION CIRCUIT
.
DIRECT FRAME-YOKE DRIVE (± 1A)
.
COMPOSITE VIDEO SIGNAL INPUT CAPA-
.
FRAME BILITY
OUTPUT PROTECTION AGAINST
.
PLL
SHORT CIRCUITS
.
VIDEO IDENTIFICATION CIRCUIT
.
SUPER SANDCASTLE OUTPUT
.
VERY FEW EXTERNAL COMPONENTS
.
VERY LOW COST POWER PACKAGE
DESCRIPTION
The
TDA8214B is an horizontal and vertical deflection circuit with super
sandcastle generator and video identification output. Used with TDA8213
(Video & Sound IF system) and TDA8217 (Pal decoder and video
processor), this IC permits a complete low-cost solution for PAL
applications.
GENERAL DESCRIPTION
The TDA8214B performs
all the video and power functions required to provide signals for the
line driver and frame yoke. It contains:
- A synchronization separator
- An integrated frame separator without external
components.
- A saw-tooth generator for the frame
- A power amplifier for direct drive of frame yoke (short circuit protected)
- An open collector output for the line driver
- A line phase detector and a voltage control oscillator
- A super sandcastle generator
- Video identification output.
The
slice level of sync-separation is fixed by value of the external
resistors R1 and R2. VR is an internally fixed voltage. The sync-pulse
allows the discharge of the capaci- tor by a 2 x I current. A line
sync-pulse is not able to discharge the capacitor under VZ/2. A frame
sync-pulse permits the complete discharge of the capacitor, so during
the frame sync-pulse Q3 and Q4 provide current for the other parts of
the circuit.
The oscillator thresholds are internally fixed by
resistors. The discharge of the capacitor depends on the internal
resistor R4. The control voltage is applied on resistor R5. comparator
is an alternatively negative and positive current. The frame sync-pulse
inhibits the comparator to prevent frequency drift of the line
oscillator on the frame beginning.
The sync-pulse drives the
current in the comparator. The line flyback integrated by the external
net work gives on pin 13 a saw tooth, the DC offset of this saw tooth is
fixed by VC. The comparator output provides a positive current for the
part of the signal on pin 13 greater than to VC and a negative current
for the other part. When the line flyback and the video signal are
synchronized, the output of the Line output (Pin 17) It is an
open-collector output. The output positive pulse time is 29μs for a 64μs
period. The oscillator thresholds are internally fixed resistors. The
oscillator is synchronized during the last half free run period. The
input current during the charge of the capacitor is less than 100nA. 
Frame output amplifier
This
amplifier is able to drive directly the frame yoke. Its output is short
circuit and overload pro- tected; it contains also a thermal
protection. The frame blanking is detected by the frame fly- back
generator. When the output voltage of the frame amplifier exceeds
VCC2-2VBE, the pulse is detected. The line flyback detection is provided
by a comparator which compares the input line flyback pulse to an
internal reference. The burst gate pulse position is fixed by the
external RC network (Pin 14). It is referenced to the middle of the line
Figure 7 : Super Sandcastle Generator flyback.
This stage will
detect the coincidence between the line sync pulse (if present) and a
2μs sampling pulse. This 2μs pulse is positionned at the center of line
sync pulse when the phase loop is locked. This sampled detection is
stored by an external capacitor Pin 8. The identification output level
is high when video signal is present. Important remark : minimum
saw-tooth amplitude on Pin 13 has to be 2V PP (typ. : 2.5VPP).
The PHILIPS SAA5244 SAA5244A Integrated VIP and teletext decoder decodes teletext to Level 1 specifications.
It can decode additional packets such as Packets 8/30 and 27, making it compatible with FASTEXT, BSDP and PDC. It also automatically decodes the Hamming 8/4 error protection on these pac
kets.
It's available as a 40-pin DIP or 44-pin QFP and requires a 27MHz clock signal, which can be supplied by a standard crystal with additional circuitry or a crystal oscillator.
It comes with 5 national options (additional characters) built-in, English, German, Swedish, Italian and French - and also 32 characters for OSD use.
The PHILIPS SAA5244 can act as a master or slave for video sync - it can even sync to 525 line sources for stable text overlay.
The chip can be used as a simple display chip, by setting it to master sync mode and disabling the acquisition circuits you can write freely to any point on the 25 row, 40 column display.
The PHILIPS SAA5244 takes a standard 625 line Composite PAL video signal as its video input. This connects to pin 8 (DIP) or 25 (QFP) via a decoupling ceramic capacitor.
It outputs an RGB video signal, whose voltage peak can be controlled by the RGBREF pin, along with a Blanking signal which can be used to overlay text on a live video signal - this requires a SCART socket or additional circuitry. In master sync mode it outputs a sync signal from pin 12 (DIP) or 29 (QFP). In slave mode this pin is used as a sync input.
Additionally, the chip outputs an Odd/Even field clock, Y (luma) and a "contrast reduction" output for overlay use.
The Integrated VIP and Teletext (IVT1.1) is a teletext decoder (contained within a single-chip package) for decoding 625-line based World System Teletext transmissions. The teletext decoder hardware is based on a reduced function version of the device PHILIPS SAA5246 (IVT1.0). The Video Input Processor (VIP) section of the device uses mixed analog and digital designs for the data slicer and the display clock phase-locked loop functions. As a result the number of external components is greatly reduced and no critical or adjustable components are required. A single page static RAM is incorporated in the device thereby giving a genuine single-chip teletext decoder device.
FEATURES
• Complete teletext decoder including page memory in a
single 40-pin DIL package
• Single +5 V power supply
• Digital data slicer and display clock phase-locked loop
reduces peripheral components to a minimum
• Both video and scan related synchronization modes are
supported
• On board single page memory including extension
packets for FASTEXT
• Single page acquisition system
• RGB interface to standard colour decoder ICs, push-pull
output drive
• Data capture performance similar to SAA5231 (VIP2)
• Simple software control via I2C-bus
• Option for five national languages
• 32 supplementary characters for on-screen displays
• Optional storage of packet 24 in the display memory
• Page links in packets 27 and 8/30 are Hamming
decoded
• Separate text and video signal quality detectors,
625/525 video status and language version all readable
via I2C-bus
• Automatic ODD/EVEN output control with manual
override
• Control of display PLL free-run and rolling header via
I2C-bus
• VCS to SCS mode for stable 525 line status display



































No comments:
Post a Comment
The most important thing to remember about the Comment Rules is this:
The determination of whether any comment is in compliance is at the sole discretion of this blog’s owner.
Comments on this blog may be blocked or deleted at any time.
Fair people are getting fair reply. Spam and useless crap and filthy comments / scrapers / observations goes all directly to My Private HELL without even appearing in public !!!
The fact that a comment is permitted in no way constitutes an endorsement of any view expressed, fact alleged, or link provided in that comment by the administrator of this site.
This means that there may be a delay between the submission and the eventual appearance of your comment.
Requiring blog comments to obey well-defined rules does not infringe on the free speech of commenters.
Resisting the tide of post-modernity may be difficult, but I will attempt it anyway.
Your choice.........Live or DIE.
That indeed is where your liberty lies.
Note: Only a member of this blog may post a comment.